神宮前5丁目ビル
1/1
神宮前5丁目ビル
#カーポート
東京メトロ副都心線 / 明治神宮前〈原宿〉駅 徒歩4分
賃貸物件一覧
画像
賃料
敷金/礼金
入居可能時期
契約期間
契約形態
お問い合わせ
基本情報
物件名
神宮前5丁目ビル
住所
東京都渋谷区神宮前5丁目18-8
最寄り駅
東京メトロ副都心線 / 明治神宮前〈原宿〉駅 徒歩4分 東京メトロ千代田線 / 表参道駅 徒歩8分 東京メトロ銀座線 / 表参道駅 徒歩8分 東京メトロ半蔵門線 / 表参道駅 徒歩8分
賃料
1,399,200円
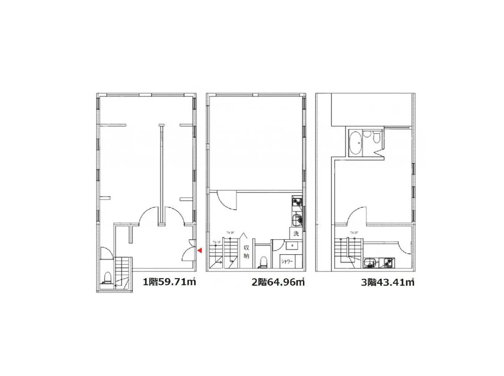
間取り
3R
敷地面積
168.08㎡
建物面積
-
延べ床面積
-
築年数
2001年8月 (築25年)
物件特徴
路面店
構造
S造(軽量鉄骨造)
階建て
地上3階
情報更新日
2026/01/08
設備
設備
カーポート
アクセスマップ
神宮前5丁目ビルとは
神宮前エリアに新たに誕生した、洗練されたデザインの商業ビル。地上5階・地下1階の構造を持ち、2025年に竣工予定のこのビルは、現代的なライフスタイルを反映した多目的スペースとして利用可能です。1階の店舗は前面ガラス張りで、路面店としての優れた視認性を兼ね備えており、訪れる人々に強い印象を与えます。 専有面積は74.80㎡(約22.63坪)で、スケルトン仕様により柔軟なレイアウトが実現可能。飲食業態には不向きですが、美容室や小売店、サロンなど、多様な業種での利用が期待されます。さらに、天井高は2.5メートル以上で、開放感のある空間を演出。新耐震基準を満たした安心の構造で、万が一の事態にも備えています。 交通アクセスも非常に良好で、東京メトロ千代田線の表参道駅から徒歩約7分、明治神宮前駅からも徒歩約10分と、ビジネスやショッピングエリアへのアクセスが容易です。この立地は、訪れる多様なお客様のニーズに応えるための絶好のポイントとなるでしょう。入居可能日は即日からで、ビジネスをスタートする絶好の機会です。
備考
賃貸の場合 ■分譲賃貸マンションの場合、貸主様や代理不動産業者によって、家賃や管理費、敷金や礼金など賃貸借契約に関する設定が異なります。また、各お部屋の所有者様によって、設備や使用、内装などが変更されている場合もございます。 ■敷金や礼金、各種キャンペーンについてはお部屋ごとに異なる場合がございます。また、予告なく変更・終了する場合がございますのでお申込みの際は募集条件を担当者までご確認ください。 ■ペットの飼育やSOHO利用の可否については、建物の管理規約にて可能になっている場合でも、お部屋の所有者様の意向により禁止の場合もございます。 ■ご契約時には仲介手数料として賃料の1ヶ月分+税相当額を仲介手数料として頂戴いたします。 不明点や詳細は担当者までご相談ください。


