ペアシティ表参道 204号室
1/1
ペアシティ表参道 204号室
#オートロック
#エレベーター
#宅配BOX
東京メトロ副都心線 / 明治神宮前〈原宿〉駅 徒歩7分
基本情報
物件名
ペアシティ表参道
住所
東京都渋谷区神宮前4丁目18-4
部屋番号
204号室
最寄り駅
東京メトロ副都心線 / 明治神宮前〈原宿〉駅 徒歩7分 東京メトロ半蔵門線 / 表参道駅 徒歩6分 JR山手線 / 原宿駅 徒歩11分 東京メトロ副都心線 / 明治神宮前〈原宿〉駅 徒歩5分
賃料
390,000円
共益費
-
管理費
-
敷金
1ヶ月
礼金
1ヶ月
フリーレント
-
用途
住居
保険
加入要
保証会社
加入可
保証金
-
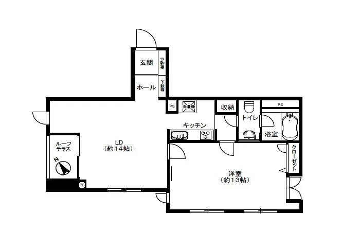
間取り
1LDK
専有面積
64.95㎡
築年数
2001年2月 (築25年)
方角
南西
賃借種別
普通借家
賃借期間
2年間
物件特徴
駐車場あり
特記事項
-
入居日
即入居可
構造
RC造(鉄筋コンクリート造)
所在階
2階
総階数
地上5階 / 地下1階
総戸数
18戸
エレベーター
あり
取引態様
媒介(仲介)
情報更新日
2026/03/20
設備
オートロック
エレベーター
宅配BOX
セキュリティー
オートロック
モニタ付インターホン
防犯カメラ
管理人有り (日勤)
火災警報器 (報知機)
設備
機械式
屋内駐輪場
駐車場
テラス
角部屋
共有部
エレベーター
宅配BOX
敷地内ゴミ置き場
24時間ゴミ出し可
各フロアゴミ置き場
バス・トイレ
オートバス
浴室乾燥機
温水洗浄便座
追焚機能
B・T別
シャワー
トイレ
独立洗面台
洗面台
キッチン
3口以上コンロ
システムキッチン
室内設備
クローゼット
収納スペース
都市ガス
全居室フローリング
上水道
下水道
エアコン
エアコン2台以上
ビルトインエアコン
全居室エアコン
インターネット対応
光回線
シューズボックス
フローリング
その他の特徴
二人入居可
IT重説 対応物件
定期借家を含まない
10分以内にコンビニがある
10分以内にスーパーがある
10分以内に公園がある
10分以内に保育園・幼稚園がある
10分以内に小学校がある
アクセスマップ
ペアシティ表参道とは
表参道の華やかな街並みに抱かれた、重厚で洗練されたデザインのレジデンスがあなたを待っています。都会の喧騒を忘れさせる閑静な住宅街に位置し、アーチ型のエントランスがエレガンスを演出。贅沢な空間設計で、全住戸が角住戸となり、日当たりと通風の良さにもこだわりました。外壁はライムストーンと赤レンガ調タイルのツートンカラーで、高級感溢れる外観を実現。2001年築、地上5階の建物は18戸のプライベートなコミュニティを形成しており、ペットと共に暮らせる幸せも叶えます。複数路線が利用可能な好立地で、都心へのアクセスも抜群。表参道ヒルズへの散策も楽しめる、都心での上質な暮らしをこの場所で。
この物件に近いおすすめ物件

ディアナガーデン神宮前
東京メトロ副都心線/北参道駅 徒歩7分
398,000円(管理費:0円)
2LDK/70.85㎡

GOTO BLD【後藤ビル】
東京メトロ銀座線/外苑前駅 徒歩5分
352,000円(管理費:0円)
1LDK/53.97㎡

原宿インペリアルハイツ
東京メトロ副都心線/北参道駅 徒歩8分
300,000円(管理費:0円)
3LDK/61.04㎡

ザ・神宮前レジデンス
東京メトロ銀座線/外苑前駅 徒歩7分
610,000円(管理費:0円)
3LDK/76.23㎡

クレヴィア原宿
東京メトロ副都心線/北参道駅 徒歩4分
310,000円(管理費:0円)
2LDK/71.92㎡

アーバンノット原宿
東京メトロ副都心線/北参道駅 徒歩5分
309,000円(管理費:0円)
1LDK/53.1㎡

クインテット原宿
東京メトロ銀座線/外苑前駅 徒歩9分
420,000円(管理費:0円)
1LDK/72.48㎡

Op.St.M【オーパス・セイント・エム】
東京メトロ副都心線/明治神宮前〈原宿〉駅 徒歩4分
300,000円(管理費:0円)
1LDK/47.26㎡

パークコート神宮前TheAir【ザ エアー】
JR山手線/原宿駅 徒歩6分
350,000円(管理費:0円)
1LDK/54.61㎡

ParkAxis明治神宮前【パークアクシス明治神宮前】
JR山手線/原宿駅 徒歩3分
350,000円(管理費:15,000円)
1LDK/62.32㎡
取り扱い不動産会社
株式会社東京オルガン不動産
所在地
所在地:
東京都渋谷区神宮前4-31-11 コスモ原宿ビル 702電話番号
電話番号:
03-5843-1513取引態様 / 宅地建物取引業免許
取引態様:
仲介 /宅地建物取引業免許:
東京都知事(1)第107236号備考
賃貸の場合 ■分譲賃貸マンションの場合、貸主様や代理不動産業者によって、家賃や管理費、敷金や礼金など賃貸借契約に関する設定が異なります。また、各お部屋の所有者様によって、設備や使用、内装などが変更されている場合もございます。 ■敷金や礼金、各種キャンペーンについてはお部屋ごとに異なる場合がございます。また、予告なく変更・終了する場合がございますのでお申込みの際は募集条件を担当者までご確認ください。 ■ペットの飼育やSOHO利用の可否については、建物の管理規約にて可能になっている場合でも、お部屋の所有者様の意向により禁止の場合もございます。 ■ご契約時には仲介手数料として賃料の1ヶ月分+税相当額を仲介手数料として頂戴いたします。 不明点や詳細は担当者までご相談ください。 購入の場合 ■販売価格等は予告なく変更されている場合がございます。不明点や詳細は担当者までご相談ください。 ■ご契約時には仲介手数料として販売価格の3%+6万円+税相当額を仲介手数料として頂戴いたします。 不明点や詳細は担当者までご相談ください。

