ジェノヴィア南千住IVスカイガーデン 604号室
1/1
ジェノヴィア南千住IVスカイガーデン 604号室
#オートロック
#エレベーター
#宅配BOX
東京メトロ日比谷線 / 三ノ輪駅 徒歩9分
基本情報
物件名
ジェノヴィア南千住IVスカイガーデン
住所
東京都台東区日本堤1丁目28-9
部屋番号
604号室
最寄り駅
東京メトロ日比谷線 / 三ノ輪駅 徒歩9分 東京メトロ日比谷線 / 南千住駅 徒歩10分
賃料
108,000円
共益費
-
管理費
10,000円
敷金
-
礼金
-
フリーレント
2ヶ月
用途
住居
保険
加入要
保証会社
加入要
保証金
-
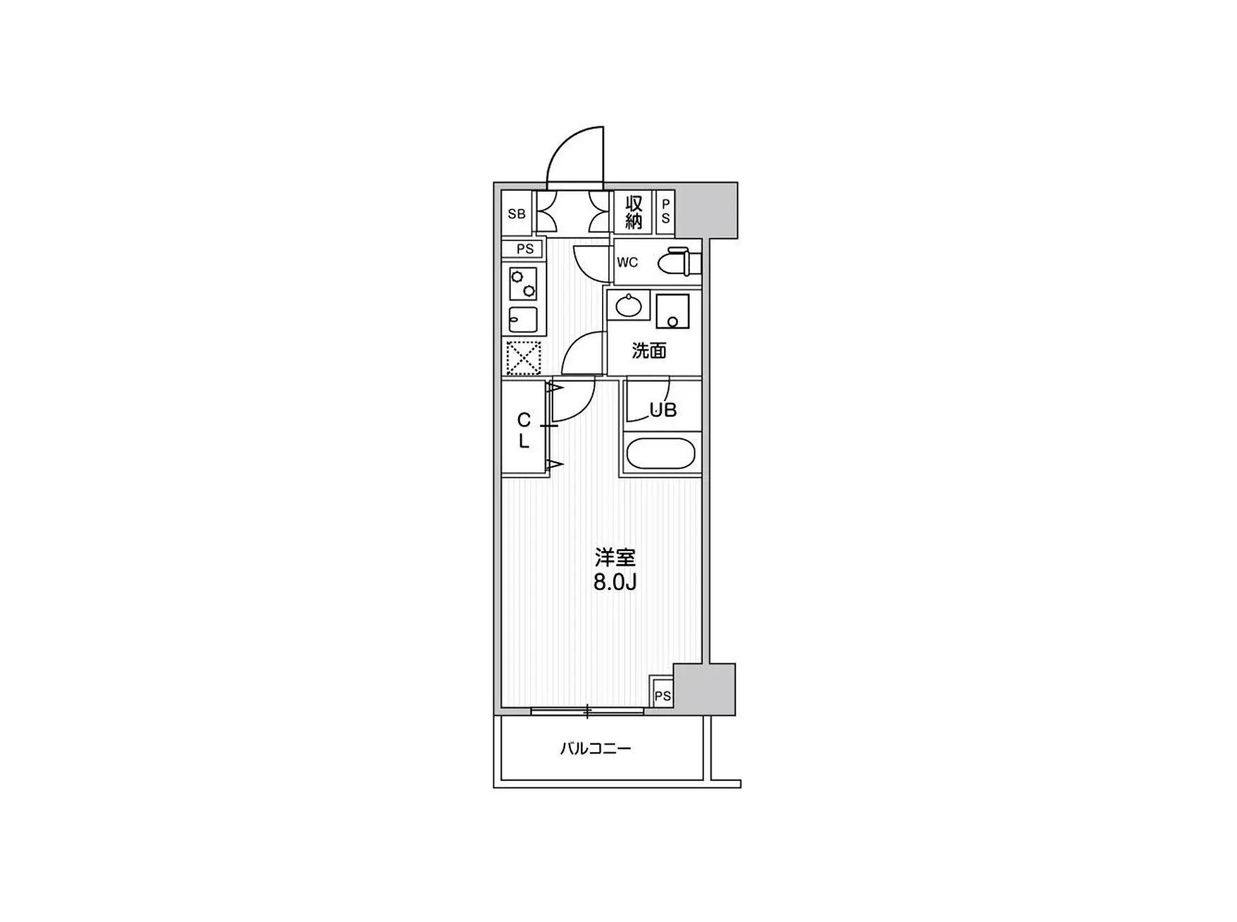
間取り
1K
専有面積
25.4㎡
築年数
2022年3月 (築4年)
方角
北
賃借種別
普通借家
賃借期間
2年
物件特徴
ペット可
特記事項
-
入居日
2025年12月上旬
構造
RC造(鉄筋コンクリート造)
所在階
6階
総階数
地上10階
総戸数
45戸
エレベーター
あり
取引態様
媒介(仲介)
情報更新日
2025/11/29
設備
オートロック
エレベーター
宅配BOX
セキュリティー
オートロック
モニタ付インターホン
防犯カメラ
火災警報器 (報知機)
設備
屋内駐輪場
バイク置き場
バルコニー
角部屋
共有部
エレベーター
宅配BOX
敷地内ゴミ置き場
24時間ゴミ出し可
内廊下
バス・トイレ
浴室乾燥機
温水洗浄便座
B・T別
シャワー
トイレ
独立洗面台
洗面台
キッチン
2口コンロ
システムキッチン
室内設備
クローゼット
収納スペース
全居室収納
照明器具
都市ガス
全居室フローリング
都市ガス給湯
エアコン
全居室エアコン
インターネット対応
光回線
インターネット無料
シューズボックス
フローリング
その他の特徴
フリーレント
IT重説 対応物件
1ヶ月以内に入居相談可
定期借家を含まない
10分以内にコンビニがある
10分以内にスーパーがある
アクセスマップ
ジェノヴィア南千住IVスカイガーデンとは
台東区日本堤に新たに誕生したこの10階建てマンションは、2022年に築かれたばかりの洗練された住空間です。最寄りの南千住駅からのアクセスは徒歩9分、周辺の三ノ輪駅や浅草駅も利用可能で、都心への移動が非常に便利です。現在、賃料104,000円の1K(25.40㎡)タイプのお部屋が空いており、敷金・礼金が不要なため、初期費用を抑えることができます。 この物件は、ペットの飼育が可能で、愛するペットと共に快適に暮らせる環境をご提供します。セキュリティ対策も充実しており、安心して生活できる環境が整っています。内装はシンプルながら機能性を重視しており、オートロックやエアコン、バス・トイレ別の配置が魅力です。さらに、システムキッチンを備えており、料理好きの方にも満足していただけるでしょう。 周辺にはドン・キホーテやスーパー、総合病院などが揃い、日常の生活においても非常に便利なロケーションです。充実した生活環境のもと、コンテンポラリーなライフスタイルを享受できるこの新築マンションは、まさに都会生活を求める方に絶好の選択肢と言えるでしょう。物件の魅力を是非実際に体感してみてください。
この物件に近いおすすめ物件

ラフィスタ三ノ輪
東京メトロ日比谷線/三ノ輪駅 徒歩4分
93,500円(管理費:15,000円)
1K/27.26㎡

コンフォリア上野入谷
東京メトロ日比谷線/三ノ輪駅 徒歩8分
111,000円(管理費:0円)
1K/25.97㎡

ハーモニーレジデンス上野ノースフロント
東京メトロ日比谷線/三ノ輪駅 徒歩2分
89,000円(管理費:0円)
1K/25.01㎡

JM竜泉
JR山手線/鶯谷駅 徒歩12分
100,000円(管理費:5,000円)
1K/25.62㎡

プレール・ドゥーク東京EASTIII
東京メトロ日比谷線/三ノ輪駅 徒歩4分
105,000円(管理費:10,000円)
1K/25.99㎡

ロイヤルプラザ浅草
東京メトロ日比谷線/三ノ輪駅 徒歩9分
107,000円(管理費:0円)
2K/32.3㎡

Park Axis台東根岸【パークアクシス台東根岸】
東京メトロ日比谷線/三ノ輪駅 徒歩9分
110,000円(管理費:0円)
1K/25.05㎡

スプランディッド南千住
東京メトロ日比谷線/三ノ輪駅 徒歩15分
210,000円(管理費:0円)
2LDK/53.83㎡

メインステージ入谷IV
東京メトロ日比谷線/入谷駅 徒歩10分
105,000円(管理費:20,000円)
1K/26.29㎡

K-FLAT
JR京浜東北線/鶯谷駅 徒歩12分
83,000円(管理費:0円)
1K/24.5㎡
取り扱い不動産会社
株式会社東京オルガン不動産
所在地
所在地:
東京都渋谷区神宮前4-31-11 コスモ原宿ビル 702電話番号
電話番号:
03-5843-1513取引態様 / 宅地建物取引業免許
取引態様:
仲介 /宅地建物取引業免許:
東京都知事(1)第107236号備考
賃貸の場合 ■分譲賃貸マンションの場合、貸主様や代理不動産業者によって、家賃や管理費、敷金や礼金など賃貸借契約に関する設定が異なります。また、各お部屋の所有者様によって、設備や使用、内装などが変更されている場合もございます。 ■敷金や礼金、各種キャンペーンについてはお部屋ごとに異なる場合がございます。また、予告なく変更・終了する場合がございますのでお申込みの際は募集条件を担当者までご確認ください。 ■ペットの飼育やSOHO利用の可否については、建物の管理規約にて可能になっている場合でも、お部屋の所有者様の意向により禁止の場合もございます。 ■ご契約時には仲介手数料として賃料の1ヶ月分+税相当額を仲介手数料として頂戴いたします。不明点や詳細は担当者までご相談ください。

