ヤマノ26ビル 2-B号室
1/1
ヤマノ26ビル 2-B号室
#エレベーター
JR山手線 / 代々木駅 徒歩3分
基本情報
物件名
ヤマノ26ビル
住所
東京都渋谷区代々木1丁目21-12
部屋番号
2-B号室
最寄り駅
JR山手線 / 代々木駅 徒歩3分 都営大江戸線 / 代々木駅 徒歩4分 東京メトロ副都心線 / 北参道駅 徒歩5分
賃料
457,083円(税込)
共益費
-
管理費
-
敷金
-
礼金
1ヶ月
フリーレント
-
用途
オフィス
保険
加入要
保証会社
加入可
保証金
6ヶ月(償却:2ヶ月)
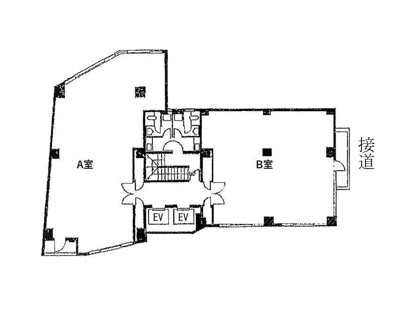
間取り
1R
専有面積
72.29㎡
坪数
21.86坪
築年数
1984年11月 (築42年)
方角
-
賃借種別
定期借家
賃借期間
2年間
物件特徴
セットアップオフィス
特記事項
トイレ清掃費:8,000円/月 看板使用料:30,000円
入居日
2025年12月
構造
RC造(鉄筋コンクリート造)
所在階
2階
総階数
地上5階
総戸数
-
エレベーター
2基
取引態様
媒介(仲介)
情報更新日
2025/12/27
設備
エレベーター
共有部
エレベーター
エレベーター2基以上
バス・トイレ
トイレ2ヶ所
トイレ
トイレ(共同)
洗面台
室内設備
エアコン
インターネット対応
その他の特徴
事務所利用相談
IT重説 対応物件
1ヶ月以内に入居相談可
10分以内にコンビニがある
10分以内に公園がある
事務所特徴
個別空調
男女トイレ別
大通り沿い
設備
バルコニー
2面採光
角部屋
キッチン
ミニキッチン
アクセスマップ
ヤマノ26ビルとは
都心・代々木の閑静さと利便性を両立する賃貸オフィスビル。1984年竣工、2012年にリニューアルを済ませたエントランスは、上質な空間へと一新され、落ち着きのベージュ系タイル外観が周囲と調和します。新耐震基準を満たす5階建てで、各階はA・Bの2区画に分かれるフレキシブルな間取り。2階B室は約21.87坪(72.29㎡)で現在募集中、賃料は相談、入居日2025年12月を想定しています。エレベーターは2基、トイレは男女別、給湯設備も整い、機械警備によるセキュリティ体制も備えています。 代々木駅へ徒歩約2分の好立地を筆頭に、北参道・南新宿・千駄ヶ谷・新宿方面へもアクセス良好。周辺にはコンビニや金融機関が点在し、JR山手線をはじめ複数路線の利用がビジネスの拠点としての利便性を高めます。看板製作費3万円の費用負担や指定保証会社の加入、解約予告6ヶ月前など、契約条件の詳細は区画ごとにご案内します。小規模オフィスやSOHO用途にも適しており、オフィスの新設・リニューアルを検討する企業に柔軟に対応できる魅力を備えています。
この物件に近いおすすめ物件

ケンハーバー【KenHarbor】
JR山手線/原宿駅 徒歩7分
467,000円(管理費:33,000円)
2R/78.22㎡

ビラビアンカ【VILLABIANCA】
JR山手線/原宿駅 徒歩8分
407,000円(管理費:0円)
1R/76.95㎡

HT神宮前ビル
東京メトロ副都心線/北参道駅 徒歩9分
363,000円(管理費:0円)
1R/86.49㎡

ニュー千駄ヶ谷マンション
JR中央・総武線/千駄ケ谷駅 徒歩4分
330,000円(管理費:0円)
1R/54.48㎡

Tanaka Building【タナカビル】
東京メトロ副都心線/北参道駅 徒歩2分
396,000円(管理費:0円)
1R/66.85㎡

IMEX北参道
東京メトロ副都心線/北参道駅 徒歩3分
563,400円(管理費:0円)
1R/56.45㎡

EDIFICE北参道【エディフィス北参道】 旧)赤松ビル
東京メトロ副都心線/北参道駅 徒歩3分
495,000円(管理費:0円)
2R/86㎡

マリア千駄ヶ谷ビル
東京メトロ副都心線/北参道駅 徒歩3分
330,000円(管理費:22,000円)
3R/59.13㎡

アカデミービル
東京メトロ副都心線/北参道駅 徒歩2分
397,001円(管理費:0円)
1R/70.21㎡

フローリッシュ千駄ヶ谷
東京メトロ副都心線/北参道駅 徒歩6分
330,000円(管理費:33,000円)
1R/67.12㎡
取り扱い不動産会社
株式会社東京オルガン不動産
所在地
所在地:
東京都渋谷区神宮前4-31-11 コスモ原宿ビル 702電話番号
電話番号:
03-5843-1513取引態様 / 宅地建物取引業免許
取引態様:
仲介 /宅地建物取引業免許:
東京都知事(1)第107236号備考
賃貸の場合 ■分譲賃貸マンションの場合、貸主様や代理不動産業者によって、家賃や管理費、敷金や礼金など賃貸借契約に関する設定が異なります。また、各お部屋の所有者様によって、設備や使用、内装などが変更されている場合もございます。 ■敷金や礼金、各種キャンペーンについてはお部屋ごとに異なる場合がございます。また、予告なく変更・終了する場合がございますのでお申込みの際は募集条件を担当者までご確認ください。 ■ペットの飼育やSOHO利用の可否については、建物の管理規約にて可能になっている場合でも、お部屋の所有者様の意向により禁止の場合もございます。 ■ご契約時には仲介手数料として賃料の1ヶ月分+税相当額を仲介手数料として頂戴いたします。 不明点や詳細は担当者までご相談ください。

