井門美竹ビル 3階D号室
1/1
井門美竹ビル 3階D号室
#24時間セキュリティー
#エレベーター
東京メトロ副都心線 / 渋谷駅 徒歩6分
基本情報
物件名
井門美竹ビル
住所
東京都渋谷区渋谷1丁目20-1
部屋番号
3階D号室
最寄り駅
東京メトロ副都心線 / 渋谷駅 徒歩6分 東急東横線 / 渋谷駅 徒歩6分 東急田園都市線 / 渋谷駅 徒歩6分 東京メトロ副都心線 / 明治神宮前〈原宿〉駅 徒歩8分 東京メトロ半蔵門線 / 渋谷駅 徒歩8分 東京メトロ銀座線 / 渋谷駅 徒歩8分 相鉄・JR直通線 / 渋谷駅 徒歩8分 JR埼京線 / 渋谷駅 徒歩8分 JR山手線 / 渋谷駅 徒歩8分 JR湘南新宿ライン / 渋谷駅 徒歩8分 京王井の頭線 / 渋谷駅 徒歩8分
賃料
432,883円(税込)
共益費
-
管理費
-
敷金
-
礼金
-
フリーレント
-
用途
オフィス
保険
加入要
保証会社
加入可
保証金
12ヶ月分(相談)
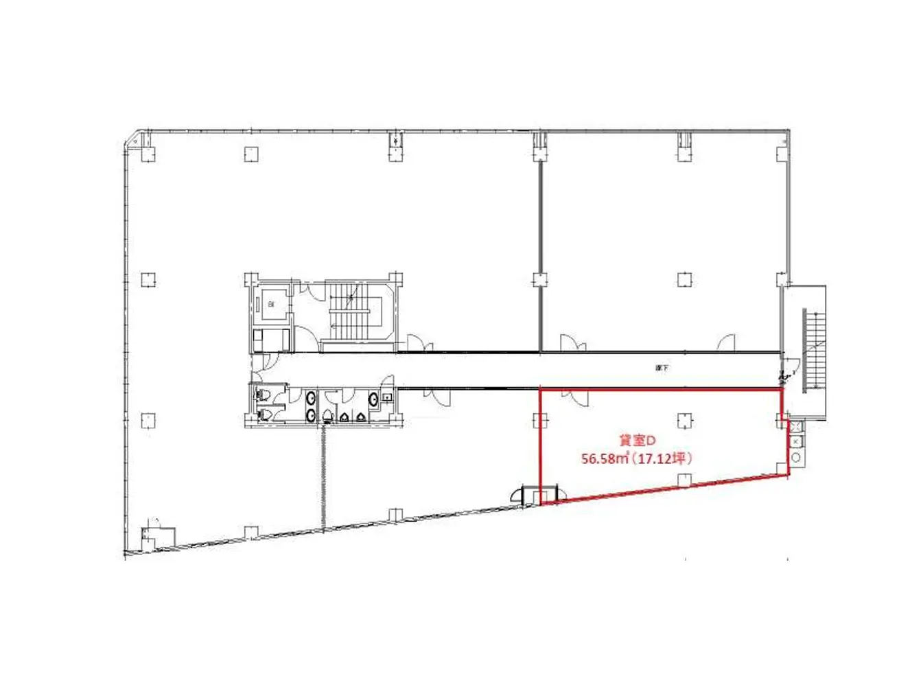
間取り
1R
専有面積
56.58㎡
坪数
17.11坪
築年数
1975年2月 (築51年)
方角
-
賃借種別
定期借家
賃借期間
3年間
物件特徴
駐車場あり
特記事項
-
入居日
2026年4月上旬
構造
RC造(鉄筋コンクリート造)
所在階
3階
総階数
地上6階 / 地下1階
総戸数
-
エレベーター
あり
取引態様
媒介(仲介)
情報更新日
2025/11/13
設備
24時間セキュリティー
エレベーター
セキュリティー
防犯カメラ
24時間セキュリティー
共有部
エレベーター
バス・トイレ
トイレ(共同)
室内設備
エアコン
インターネット対応
その他の特徴
事務所利用相談
IT重説 対応物件
10分以内にコンビニがある
10分以内に公園がある
事務所特徴
24時間利用可
個別空調
角地
設備
2面採光
角部屋
アクセスマップ
井門美竹ビルとは
渋谷区の中心に位置するこの物件は、1975年に竣工された地上6階、地下1階の鉄筋コンクリート造のオフィスビルです。JR山手線および東京メトロ千代田線の駅からも徒歩圏内で、アクセスの良さが魅力。明治通りと青山通りに近接し、周辺には高級マンションや専門学校が立ち並ぶ落ち着いたエリアが広がっています。 このビルは、各階に個別空調を完備し、男女別のトイレも設置されているため、快適なオフィス環境を提供します。また、機械警備と有人警備を併用した高いセキュリティが確保されており、安心してお仕事ができる環境です。床はタイルカーペット仕様で、窓面が多く自然光が豊富に入るため、明るく開放的な空間が演出されています。 さらに、2011年には耐震補強工事が施されており、安心して長期間にわたって利用できることも大きなポイントです。宮下公園のバス停が徒歩3分の距離にあり、新宿や池袋方面へのアクセスも便利です。ビジネスに必要な条件を兼ね備えたこの物件は、事務所や店舗としても理想的な選択肢と言えるでしょう。
この物件に近いおすすめ物件

イル・チェントロ・セレーノ【IL CENTRO SERENO】
東京メトロ半蔵門線/表参道駅 徒歩6分
388,310円(管理費:0円)
1R/44.27㎡

AXIA原宿【アクシア原宿】
JR山手線/原宿駅 徒歩3分
352,000円(管理費:0円)
1R/47.44㎡

原宿トリニティビル
東京メトロ副都心線/明治神宮前〈原宿〉駅 徒歩4分
396,000円(管理費:0円)
1R/66.1㎡

越一ビル
東京メトロ副都心線/渋谷駅 徒歩6分
459,800円(管理費:0円)
1R/62.81㎡

サンポウ綜合ビル
東京メトロ副都心線/明治神宮前〈原宿〉駅 徒歩1分
451,200円(管理費:0円)
1R/48.42㎡

Casa Felice 【カーサフェリーチェ】
東京メトロ副都心線/明治神宮前〈原宿〉駅 徒歩7分
385,000円(管理費:0円)
1R/42.04㎡

カワムラビル
東京メトロ副都心線/明治神宮前〈原宿〉駅 徒歩7分
380,820円(管理費:0円)
1R/57.23㎡

フォレストプラザ表参道【Forest Plaza Omotesando】
東京メトロ銀座線/表参道駅 徒歩5分
430,000円(管理費:0円)
1R/48.22㎡

磐梯ビル【バンダイビル】
東京メトロ副都心線/明治神宮前〈原宿〉駅 徒歩7分
418,000円(管理費:0円)
1R/42.12㎡

Bsquare竹下通り【ビースクエア竹下通り】
JR山手線/原宿駅 徒歩4分
435,105円(管理費:48,345円)
1R/48.45㎡
取り扱い不動産会社
株式会社東京オルガン不動産
所在地
所在地:
東京都渋谷区神宮前4-31-11 コスモ原宿ビル 702電話番号
電話番号:
03-5843-1513取引態様 / 宅地建物取引業免許
取引態様:
仲介 /宅地建物取引業免許:
東京都知事(1)第107236号備考
賃貸の場合 ■分譲賃貸マンションの場合、貸主様や代理不動産業者によって、家賃や管理費、敷金や礼金など賃貸借契約に関する設定が異なります。また、各お部屋の所有者様によって、設備や使用、内装などが変更されている場合もございます。 ■敷金や礼金、各種キャンペーンについてはお部屋ごとに異なる場合がございます。また、予告なく変更・終了する場合がございますのでお申込みの際は募集条件を担当者までご確認ください。 ■ペットの飼育やSOHO利用の可否については、建物の管理規約にて可能になっている場合でも、お部屋の所有者様の意向により禁止の場合もございます。 ■ご契約時には仲介手数料として賃料の1ヶ月分+税相当額を仲介手数料として頂戴いたします。 不明点や詳細は担当者までご相談ください。

