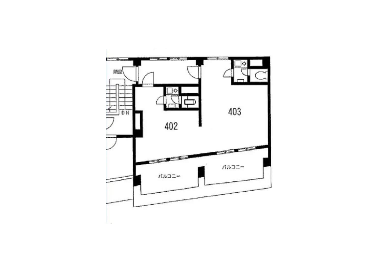
第二駒信ビル 402・403号室
1/1
第二駒信ビル 402・403号室
JR山手線 / 原宿駅 徒歩5分
基本情報
物件名
第二駒信ビル
住所
東京都渋谷区千駄ヶ谷3丁目61-11
部屋番号
402・403号室
最寄り駅
JR山手線 / 原宿駅 徒歩5分 東京メトロ副都心線 / 北参道駅 徒歩7分
賃料
247,500円(税込)
共益費
-
管理費
22,000円(税込)
敷金
-
礼金
1.1ヶ月
フリーレント
-
用途
オフィス
保険
加入要
保証会社
加入可
保証金
6ヶ月分(償却:2.2ヶ月分)
間取り
1R
専有面積
45.45㎡
坪数
13.74坪
築年数
1974年4月 (築51年)
方角
-
賃借種別
普通借家
賃借期間
2年間
物件特徴
ヴィンテージ
特記事項
-
入居日
即入居可
構造
RC造(鉄筋コンクリート造)
所在階
4階
総階数
地上4階
総戸数
-
エレベーター
なし
取引態様
媒介(仲介)
情報更新日
2025/11/06
設備
セキュリティー
防犯カメラ
設備
屋外駐輪場
駐車場
バルコニー
2面採光
角部屋
バス・トイレ
トイレ2ヶ所
トイレ
洗面台
室内設備
照明器具
エアコン
エアコン2台以上
全居室エアコン
インターネット対応
その他の特徴
事務所利用相談
IT重説 対応物件
定期借家を含まない
10分以内にコンビニがある
10分以内にスーパーがある
10分以内に公園がある
10分以内に保育園・幼稚園がある
10分以内に小学校がある
即入居可
事務所特徴
閑静な場所
角地
キッチン
ミニキッチン
アクセスマップ
第二駒信ビルとは
都会の喧騒を感じさせない落ち着いたエリアに位置する、1974年竣工の質実剛健を感じるオフィスビル。地上4階の鉄筋コンクリート構造で、エレベーターはありませんが、それがかえってこの物件の歴史と風格を感じさせます。階段を上がるたびに、新たなビジネスの可能性が広がることでしょう。周辺はコンビニや郵便局などの生活施設が充実しており、日々の業務に必要なものがすぐに手に入ります。また、原宿駅から徒歩わずかの距離にあり、アクセスの良さはビジネスにおいて大きな利点となります。内装はエアコン完備の快適な空間で、ミニキッチンやトイレも2箇所設置されており、機能的なオフィスライフをサポート。駐車場もあり、都心での移動もスムーズです。伝統ある立地で、新しいビジネスの拠点として、ぜひご検討ください。
この物件に近いおすすめ物件

マーシュストーン原宿ビル
東京メトロ副都心線/北参道駅 徒歩5分
297,000円(管理費:0円)
1R/56.29㎡

ル・シヤージュ神宮前
東京メトロ副都心線/明治神宮前〈原宿〉駅 徒歩7分
211,000円(管理費:0円)
1R/43.29㎡

Hisui Apartment【ヒスイアパートメント】
東京メトロ副都心線/明治神宮前〈原宿〉駅 徒歩9分
195,000円(管理費:6,000円)
1R/36.27㎡

メゾンボア
東京メトロ副都心線/北参道駅 徒歩5分
222,750円(管理費:0円)
1R/44.62㎡

北参道パークビル
東京メトロ副都心線/北参道駅 徒歩1分
297,000円(管理費:0円)
2R/43.92㎡

ヴィラパルテノン
東京メトロ副都心線/北参道駅 徒歩5分
180,000円(管理費:11,000円)
1R/37.41㎡

モデリアブリュット北参道
東京メトロ副都心線/北参道駅 徒歩3分
198,000円(管理費:0円)
1R/32.9㎡

御苑ホームズ
東京メトロ副都心線/北参道駅 徒歩6分
201,000円(管理費:6,000円)
1R/50.45㎡

プラウドジェム渋谷神南
東京メトロ副都心線/明治神宮前〈原宿〉駅 徒歩8分
200,000円(管理費:0円)
1R/35.58㎡

ニュー千駄ヶ谷マンション
東京メトロ副都心線/北参道駅 徒歩6分
330,000円(管理費:0円)
1R/54.48㎡
取り扱い不動産会社
株式会社東京オルガン不動産
所在地
所在地:
東京都渋谷区神宮前4-31-11 コスモ原宿ビル 702電話番号
電話番号:
03-5843-1513取引態様 / 宅地建物取引業免許
取引態様:
仲介 /宅地建物取引業免許:
東京都知事(1)第107236号備考
賃貸の場合 ■分譲賃貸マンションの場合、貸主様や代理不動産業者によって、家賃や管理費、敷金や礼金など賃貸借契約に関する設定が異なります。また、各お部屋の所有者様によって、設備や使用、内装などが変更されている場合もございます。 ■敷金や礼金、各種キャンペーンについてはお部屋ごとに異なる場合がございます。また、予告なく変更・終了する場合がございますのでお申込みの際は募集条件を担当者までご確認ください。 ■ペットの飼育やSOHO利用の可否については、建物の管理規約にて可能になっている場合でも、お部屋の所有者様の意向により禁止の場合もございます。 ■ご契約時には仲介手数料として賃料の1ヶ月分+税相当額を仲介手数料として頂戴いたします。 不明点や詳細は担当者までご相談ください。

