Y'MEZビル 3階
1/1
Y'MEZビル 3階
東京メトロ銀座線 / 渋谷駅 徒歩4分
基本情報
物件名
Y'MEZビル
住所
東京都渋谷区宇田川町29-7
部屋番号
3階
最寄り駅
東京メトロ銀座線 / 渋谷駅 徒歩4分 東京メトロ半蔵門線 / 渋谷駅 徒歩4分 京王井の頭線 / 渋谷駅 徒歩4分 JR山手線 / 渋谷駅 徒歩5分 相鉄・JR直通線 / 渋谷駅 徒歩5分 JR湘南新宿ライン / 渋谷駅 徒歩5分 JR埼京線 / 渋谷駅 徒歩5分 東急東横線 / 渋谷駅 徒歩5分 東京メトロ副都心線 / 渋谷駅 徒歩5分 東急田園都市線 / 渋谷駅 徒歩6分 京王井の頭線 / 神泉駅 徒歩8分
賃料
495,000円(税込)
共益費
-
管理費
-
敷金
-
礼金
1ヶ月
フリーレント
-
用途
オフィス 店舗
保険
加入要
保証会社
加入可
保証金
10ヶ月(償却:解約時の20%)
間取り
1R
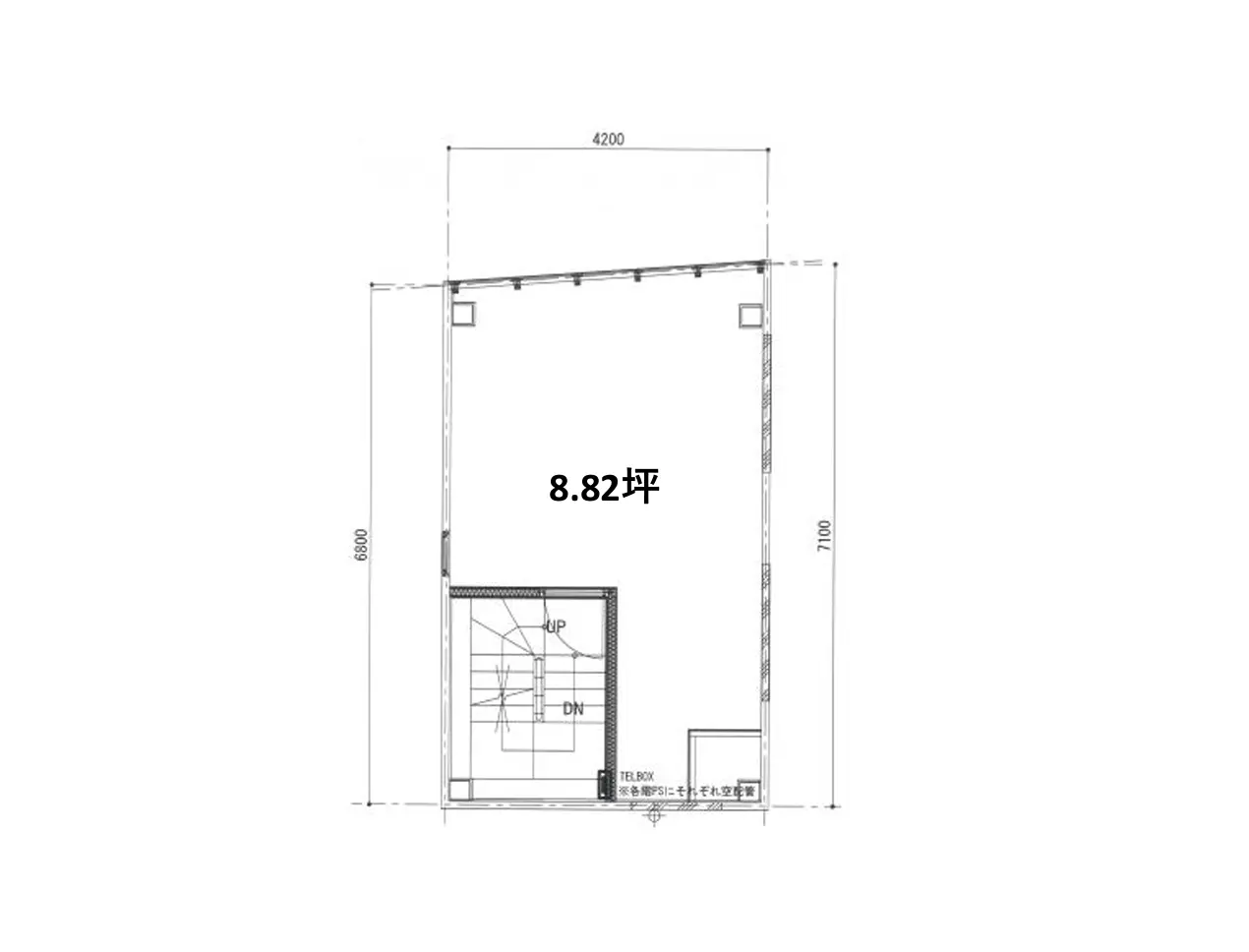
専有面積
29.19㎡
坪数
8.82坪
築年数
1979年12月 (築47年)
方角
-
賃借種別
定期借家
賃借期間
3年間
物件特徴
1フロア1テナント
特記事項
機械警備料:5,500円/月 看板使用料:3,300円/月
入居日
2025年12月中旬
構造
RC造(鉄筋コンクリート造)
所在階
3階
総階数
地上5階
総戸数
-
エレベーター
なし
取引態様
媒介(仲介)
情報更新日
2025/11/06
設備
室内設備
インターネット対応
その他の特徴
事務所利用相談
IT重説 対応物件
2ヶ月以内に入居相談可
10分以内にコンビニがある
10分以内に公園がある
事務所特徴
スケルトン
1フロア1テナント
個別空調
大通り沿い
店舗特徴
スケルトン
1フロア1テナント
前面ガラス張り
看板取り付けスペース
大通り沿い
繁華街
設備
角部屋
アクセスマップ
Y'MEZビルとは
井の頭通り沿いの賑わいをすぐそばに感じられる、渋谷の絶好立地に位置する貸店舗・事務所区画。渋谷駅へは徒歩約2〜3分の快速アクセスで、朝夕の動線も抜群です。3階区画は約29㎡のコンパクトなオフィス店舗仕様。月額賃料は約45万円、共益費は賃料に含む形、入居可能日は2025年12月中旬予定。2階区画は居抜きでのお引き渡しが相談可能で、現況の設備を活かしたスピード入居が可能です。重飲食にも対応可能な区画もあり、飲食・物販・サービス業など、多様な業種に適したフレキシブルなスペックを備えています。周囲には店舗・オフィス・商業施設が集まり、プロモーションやイベントを仕掛けやすい環境。条件は区画によって異なりますので、詳しくはお問い合わせください。
この物件に近いおすすめ物件

ラ・ポルト青山ビル【La Porte Aoyama】
東京メトロ銀座線/表参道駅 徒歩5分
440,000円(管理費:0円)
1R/28.44㎡

南青山MCビル
東京メトロ銀座線/表参道駅 徒歩6分
396,000円(管理費:0円)
1R/32.76㎡

第18宮庭マンション
京王井の頭線/神泉駅 徒歩3分
396,000円(管理費:0円)
1R/34.4㎡

サン青山ビル
東京メトロ副都心線/渋谷駅 徒歩6分
495,000円(管理費:0円)
1R/35.24㎡
取り扱い不動産会社
株式会社東京オルガン不動産
所在地
所在地:
東京都渋谷区神宮前4-31-11 コスモ原宿ビル 702電話番号
電話番号:
03-5843-1513取引態様 / 宅地建物取引業免許
取引態様:
仲介 /宅地建物取引業免許:
東京都知事(1)第107236号備考
賃貸の場合 ■分譲賃貸マンションの場合、貸主様や代理不動産業者によって、家賃や管理費、敷金や礼金など賃貸借契約に関する設定が異なります。また、各お部屋の所有者様によって、設備や使用、内装などが変更されている場合もございます。 ■敷金や礼金、各種キャンペーンについてはお部屋ごとに異なる場合がございます。また、予告なく変更・終了する場合がございますのでお申込みの際は募集条件を担当者までご確認ください。 ■ペットの飼育やSOHO利用の可否については、建物の管理規約にて可能になっている場合でも、お部屋の所有者様の意向により禁止の場合もございます。 ■ご契約時には仲介手数料として賃料の1ヶ月分+税相当額を仲介手数料として頂戴いたします。 不明点や詳細は担当者までご相談ください。

