パークアクシス秋葉原イースト 602号室
1/1
パークアクシス秋葉原イースト 602号室
#オートロック
#エレベーター
#宅配BOX
都営浅草線 / 浅草橋駅 徒歩7分
基本情報
物件名
パークアクシス秋葉原イースト
住所
東京都台東区浅草橋5丁目5-9
部屋番号
602号室
最寄り駅
都営浅草線 / 浅草橋駅 徒歩7分 東京メトロ日比谷線 / 秋葉原駅 徒歩7分 都営新宿線 / 岩本町駅 徒歩9分 JR山手線 / 秋葉原駅 徒歩9分 JR京浜東北線 / 秋葉原駅 徒歩9分
賃料
122,000円
共益費
-
管理費
8,000円
敷金
1ヶ月
礼金
1ヶ月
フリーレント
-
用途
住居
保険
加入要
保証会社
加入可
保証金
-
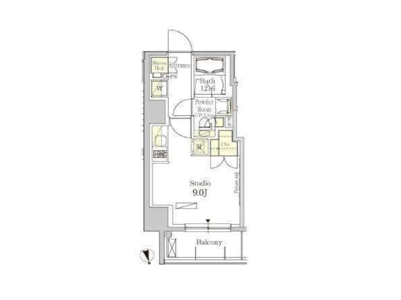
間取り
1R
専有面積
26.06㎡
築年数
2012年4月 (築13年)
方角
北
賃借種別
普通借家
賃借期間
2年間
物件特徴
-
特記事項
更新料:1か月分 保証会社:必須 レジデントアシスタンス 他3社 初回保証委託料(最低20,000円):月額賃料等50%、2年目以降:9,600円/年 入居時鍵交換代:16,500円 口振手数料:110円/月 退去時通常清掃代:55,000円 ピアノ相談可 ペット相談可:小型犬・猫1匹迄/敷金1か月積増 駐輪場:1住戸1台/ステッカー発行手数料2,200円
入居日
即入居可
構造
RC造(鉄筋コンクリート造)
所在階
6階
総階数
地上14階
総戸数
-
エレベーター
あり
取引態様
媒介(仲介)
情報更新日
2025/11/20
設備
オートロック
エレベーター
宅配BOX
駐輪場
ペット可
楽器可
セキュリティー
オートロック
モニタ付インターホン
防犯カメラ
管理人有り (常駐)
設備
屋外駐輪場
バイク置き場
バイク置き場
駐輪場
バルコニー
共有部
エレベーター
宅配BOX
敷地内ゴミ置き場
24時間ゴミ出し可
バス・トイレ
浴室乾燥機
温水洗浄便座
B・T別
キッチン
2口コンロ
ガスコンロ付
室内設備
クローゼット
エアコン
CS
BS端子
CATV
インターネット対応
シューズボックス
フローリング
その他の特徴
ペット可
楽器可
即入居可
アクセスマップ
パークアクシス秋葉原イーストとは
台東区浅草橋に位置する高級賃貸マンションは、2012年に竣工した地上14階建ての洗練されたデザインが特徴です。JR総武線の浅草橋駅から徒歩わずか6分、秋葉原駅も徒歩圏内で、ビジネスや観光に非常に便利な立地です。周辺には「アトレ秋葉原」や「ヨドバシカメラ」などの大型商業施設が揃い、日常の買い物に困ることはありません。 外観はホテルのような高級感を漂わせ、エントランスには美しいライティングが施されたアプローチが訪れる人を出迎えます。室内にはデザイン性と機能性を兼ね備えたシステムキッチンや浴室乾燥機、独立洗面台など、充実した設備が整っており、快適な生活空間を提供します。 間取りは多様で、シングルからファミリー層まで対応可能なプランが用意されています。また、ペット相談も可能であり、愛するペットと共に暮らすことができる点も魅力です。周囲の施設も充実しており、スーパーやコンビニ、医療機関も徒歩圏内にあり、生活利便性は非常に高いです。 この高級マンションは、洗練されたライフスタイルを求める方に最適な居住空間です。
この物件に近いおすすめ物件

JMFレジデンス蔵前鳥越
都営大江戸線/新御徒町駅 徒歩10分
125,000円(管理費:0円)
1R/25.88㎡

グランカーサ日本橋馬喰町
都営浅草線/浅草橋駅 徒歩5分
147,000円(管理費:0円)
1DK/25.55㎡
取り扱い不動産会社
株式会社東京オルガン不動産
所在地
所在地:
東京都渋谷区神宮前4-31-11 コスモ原宿ビル 702電話番号
電話番号:
03-5843-1513取引態様 / 宅地建物取引業免許
取引態様:
仲介 /宅地建物取引業免許:
東京都知事(1)第107236号備考
賃貸の場合 ■分譲賃貸マンションの場合、貸主様や代理不動産業者によって、家賃や管理費、敷金や礼金など賃貸借契約に関する設定が異なります。また、各お部の所有者様によって、設備や使用、内装などが変更されている場合もございます。 ■敷金や礼金、各種キャンペーンについてはお部屋ごとに異なる場合がございます。また、予告なく変更・終了する場合がございますのでお申込みの際は募集条件を担当者までご確認ください。 ■ペットの飼育やSOHO利用の可否については、建物の管理規約にて可能になっている場合でも、お部屋の所有者様の意向により禁止の場合もございます。 ■ご契約時には仲介手数料として賃料の1ヶ月分+税相当額を仲介手数料として頂戴いたします。 不明点や詳細は担当者までご相談ください。

