レジディア入谷 902号室
1/1
レジディア入谷 902号室
#オートロック
#エレベーター
#宅配BOX
東京メトロ日比谷線 / 入谷駅 徒歩3分
基本情報
物件名
レジディア入谷
住所
東京都台東区下谷1丁目13-7
部屋番号
902号室
最寄り駅
東京メトロ日比谷線 / 入谷駅 徒歩3分 JR京浜東北線 / 鶯谷駅 徒歩5分 JR山手線 / 鶯谷駅 徒歩5分 JR山手線 / 上野駅 徒歩11分 北陸新幹線 / 上野駅 徒歩11分 JR京浜東北線 / 上野駅 徒歩11分 上野東京ライン / 上野駅 徒歩11分 上越新幹線 / 上野駅 徒歩11分 宇都宮線 / 上野駅 徒歩11分 JR高崎線 / 上野駅 徒歩11分 東北新幹線 / 上野駅 徒歩11分 JR常磐線(上野~取手) / 上野駅 徒歩11分
賃料
157,000円
共益費
15,000円
管理費
-
敷金
1ヶ月
礼金
1ヶ月
フリーレント
-
用途
住居
保険
加入要
保証会社
加入要
保証金
-
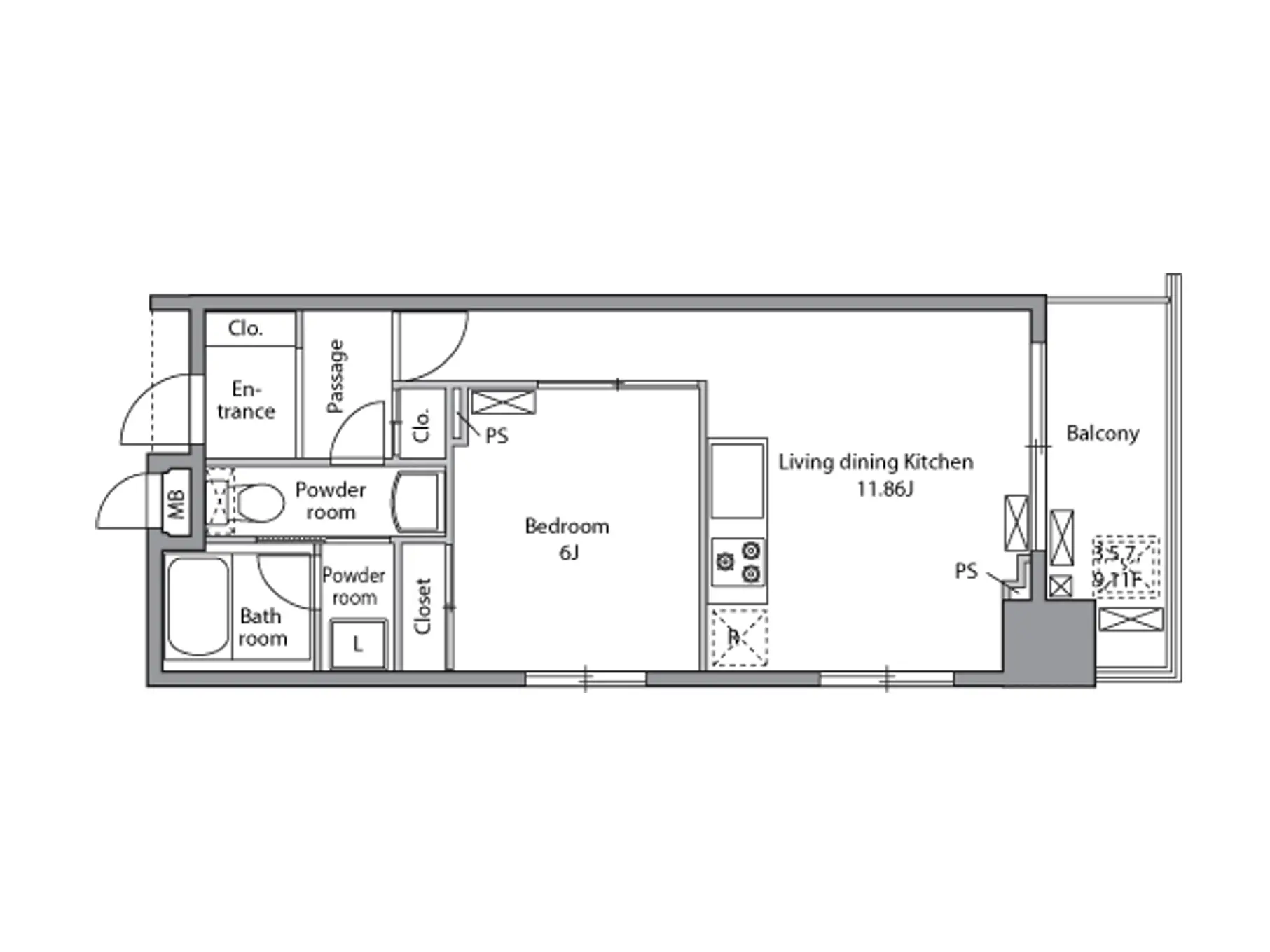
間取り
1LDK
専有面積
42㎡
築年数
2004年11月 (築22年)
方角
東
賃借種別
普通借家
賃借期間
2年
物件特徴
デザイナーズ
特記事項
鍵交換:22,000円
入居日
即入居可
構造
SRC造(鉄骨鉄筋コンクリート)
所在階
9階
総階数
地上11階
総戸数
49戸
エレベーター
あり
取引態様
媒介(仲介)
情報更新日
2025/12/02
設備
オートロック
エレベーター
宅配BOX
駐輪場
セキュリティー
オートロック
モニタ付インターホン
防犯カメラ
ダブルロックドア
火災警報器 (報知機)
設備
屋内駐輪場
駐車場
駐輪場
バルコニー
2面採光
角部屋
共有部
エレベーター
宅配BOX
敷地内ゴミ置き場
24時間ゴミ出し可
内廊下
バス・トイレ
浴室乾燥機
温水洗浄便座
追焚機能
B・T別
シャワー
トイレ
独立洗面台
洗面台
キッチン
3口以上コンロ
オープンキッチン
システムキッチン
グリル
室内設備
クローゼット
収納スペース
人感センサー付照明
照明器具
室内物干し
都市ガス
全居室フローリング
エアコン
CS
BS端子
インターネット対応
シューズボックス
フローリング
その他の特徴
二人入居可
IT重説 対応物件
定期借家を含まない
10分以内にコンビニがある
10分以内にスーパーがある
即入居可
アクセスマップ
レジディア入谷とは
東京都台東区下谷に位置するこの物件は、東京メトロ日比谷線の入谷駅から徒歩わずか3分と、交通アクセスが非常に便利です。また、JR山手線の鶯谷駅も徒歩圏内にあり、多方向へのアクセスが可能です。地上11階建ての建物は、総戸数49戸を擁し、スタイリッシュなデザインが特徴です。 居住スペースは多彩な間取りを提供しており、1DKから2LDKまで選択できるため、ライフスタイルに合った住まいを見つけやすいのも魅力です。室内には、オートロック、防犯カメラ、宅配ボックスといった充実したセキュリティが完備され、安心して暮らせる環境が整っています。さらに、追焚機能付オートバスや温水洗浄便座など快適な住環境を保つための設備も豊富に揃っており、居住者の生活をより快適にしています。 周辺にはスーパーマーケットやコンビニ、飲食店が点在しており、日常生活に必要なサポートが充実しています。また、上野恩賜公園や東京国立博物館といった文化施設も近く、散策やレジャーを楽しむことも可能です。利便性と文化的な魅力を兼ね備えたこの地域で、理想的な新生活を始めることができる場所です。
この物件に近いおすすめ物件

ジェノヴィア浅草IIスカイガーデン
東京メトロ日比谷線/三ノ輪駅 徒歩10分
157,000円(管理費:20,000円)
1LDK/43.72㎡

ボンナチュール入谷
東京メトロ日比谷線/入谷駅 徒歩4分
162,000円(管理費:12,000円)
1LDK/39.78㎡

プレサンスブルーム浅草North
東京メトロ銀座線/浅草駅 徒歩14分
182,000円(管理費:11,000円)
1LDK/40.5㎡

ルフォンプログレ浅草入谷
つくばエクスプレス/浅草駅 徒歩10分
120,000円(管理費:0円)
1DK/25.64㎡

ハーモニーレジデンスグローバルキャピタル【(仮称)台東区竜泉1丁目マンション】
JR京浜東北線/鶯谷駅 徒歩13分
101,000円(管理費:0円)
1DK/25.35㎡

プライマル浅草言問通
東京メトロ日比谷線/入谷駅 徒歩12分
123,000円(管理費:0円)
2K/25.48㎡

Log浅草classic【ログ浅草クラッシック】
東京メトロ日比谷線/入谷駅 徒歩6分
180,000円(管理費:15,000円)
1LDK/43.29㎡

ビクトリアマンション
東京メトロ日比谷線/入谷駅 徒歩7分
145,000円(管理費:10,000円)
1LDK/43.64㎡

プライムメゾン入谷
つくばエクスプレス/浅草駅 徒歩13分
253,000円(管理費:0円)
2LDK/52.8㎡

ロイヤルプラザ浅草
東京メトロ日比谷線/三ノ輪駅 徒歩9分
107,000円(管理費:0円)
2K/32.3㎡
取り扱い不動産会社
株式会社東京オルガン不動産
所在地
所在地:
東京都渋谷区神宮前4-31-11 コスモ原宿ビル 702電話番号
電話番号:
03-5843-1513取引態様 / 宅地建物取引業免許
取引態様:
仲介 /宅地建物取引業免許:
東京都知事(1)第107236号備考
賃貸の場合 ■分譲賃貸マンションの場合、貸主様や代理不動産業者によって、家賃や管理費、敷金や礼金など賃貸借契約に関する設定が異なります。また、各お部屋の所有者様によって、設備や使用、内装などが変更されている場合もございます。 ■敷金や礼金、各種キャンペーンについてはお部屋ごとに異なる場合がございます。また、予告なく変更・終了する場合がございますのでお申込みの際は募集条件を担当者までご確認ください。 ■ペットの飼育やSOHO利用の可否については、建物の管理規約にて可能になっている場合でも、お部屋の所有者様の意向により禁止の場合もございます。 ■ご契約時には仲介手数料として賃料の1ヶ月分+税相当額を仲介手数料として頂戴いたします。不明点や詳細は担当者までご相談ください。

