キャタデイマンション上野入谷 503号室
1/1
キャタデイマンション上野入谷 503号室
#エレベーター
東武伊勢崎線 / 浅草駅 徒歩15分
基本情報
物件名
キャタデイマンション上野入谷
住所
東京都台東区千束3丁目13-13
部屋番号
503号室
最寄り駅
東武伊勢崎線 / 浅草駅 徒歩15分 東京メトロ日比谷線 / 三ノ輪駅 徒歩12分 東京メトロ日比谷線 / 入谷駅 徒歩11分
賃料
76,000円
共益費
-
管理費
5,000円
敷金
1ヶ月
礼金
1ヶ月
フリーレント
-
用途
住居
保険
加入要
保証会社
加入要
保証金
-
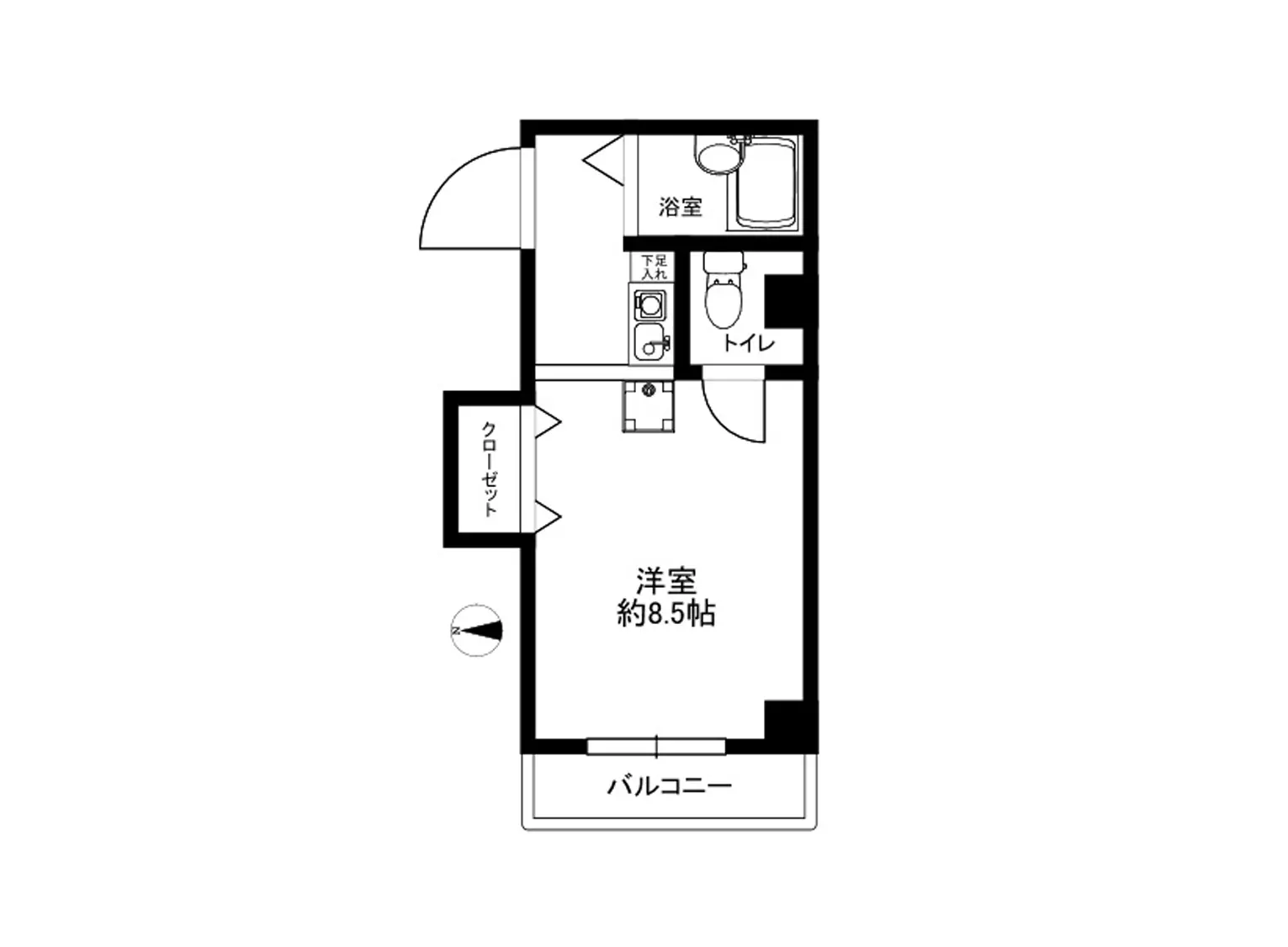
間取り
1R
専有面積
20.58㎡
築年数
1991年12月 (築35年)
方角
西
賃借種別
普通借家
賃借期間
2年
物件特徴
-
特記事項
ペット:敷金2ヶ月
入居日
2025年12月中旬
構造
S造(重量鉄骨造)
所在階
5階
総階数
地上6階
総戸数
-
エレベーター
あり
取引態様
媒介(仲介)
情報更新日
2025/11/29
設備
エレベーター
ペット可
設備
屋内駐輪場
バルコニー
共有部
エレベーター
バス・トイレ
B・T別
シャワー
トイレ
洗面台
キッチン
IHクッキングヒーター
システムキッチン
1口IH
室内設備
クローゼット
収納スペース
全居室収納
間接照明
照明器具
室内物干し
全居室フローリング
エアコン
全居室エアコン
インターネット対応
インターネット無料
シューズボックス
フローリング
セキュリティー
火災警報器 (報知機)
その他の特徴
ペット可
IT重説 対応物件
1ヶ月以内に入居相談可
定期借家を含まない
10分以内にコンビニがある
10分以内にスーパーがある
アクセスマップ
キャタデイマンション上野入谷とは
東京都台東区千束に位置するこの魅力的な物件は、快適な生活をサポートする理想的なロケーションです。入谷駅まで徒歩わずか10分、さらに浅草駅へも徒歩8分の距離にあり、都心へのアクセスが非常に良好です。周辺には日常生活を支えるコンビニやスーパーが揃い、商店街やドラッグストア、さらには総合病院も近くに位置していますので、安心して暮らせる環境が整っています。 また、地域内には台東区立千束小学校や柏葉中学校といった教育機関もあり、子育て世帯にとっても魅力的な地域です。緑豊かな公園も点在しており、心地よい生活空間が広がります。 この物件は築32年を迎えたワンルームタイプで、専有面積は19㎡。エアコンを完備し、バス・トイレは別々の設計で、プライベート空間をしっかりと確保しています。シンプルでありながら機能的なこの空間は、一人暮らしやステイ先としての利用にも最適です。都会の喧騒を感じながら、安らぎの時間をお楽しみいただけることでしょう。
この物件に近いおすすめ物件

プレール・ドゥーク上野NORTH
東京メトロ日比谷線/入谷駅 徒歩3分
95,000円(管理費:5,000円)
1R/26.43㎡

エフプレスト入谷
東京メトロ日比谷線/入谷駅 徒歩5分
90,000円(管理費:0円)
1R/20.86㎡

BASE東上野
東京メトロ日比谷線/上野駅 徒歩9分
93,000円(管理費:5,000円)
1R/18.76㎡

レジデンス上野
東北新幹線/上野駅 徒歩10分
84,000円(管理費:0円)
1R/18.6㎡

ライオンズマンション浅草言問橋
東武伊勢崎線/とうきょうスカイツリー駅 徒歩12分
78,000円(管理費:20,000円)
1R/20.25㎡

イクス・セラピア
東京メトロ日比谷線/三ノ輪駅 徒歩5分
85,000円(管理費:10,000円)
1R/25㎡
取り扱い不動産会社
株式会社東京オルガン不動産
所在地
所在地:
東京都渋谷区神宮前4-31-11 コスモ原宿ビル 702電話番号
電話番号:
03-5843-1513取引態様 / 宅地建物取引業免許
取引態様:
仲介 /宅地建物取引業免許:
東京都知事(1)第107236号備考
賃貸の場合 ■分譲賃貸マンションの場合、貸主様や代理不動産業者によって、家賃や管理費、敷金や礼金など賃貸借契約に関する設定が異なります。また、各お部屋の所有者様によって、設備や使用、内装などが変更されている場合もございます。 ■敷金や礼金、各種キャンペーンについてはお部屋ごとに異なる場合がございます。また、予告なく変更・終了する場合がございますのでお申込みの際は募集条件を担当者までご確認ください。 ■ペットの飼育やSOHO利用の可否については、建物の管理規約にて可能になっている場合でも、お部屋の所有者様の意向により禁止の場合もございます。 ■ご契約時には仲介手数料として賃料の1ヶ月分+税相当額を仲介手数料として頂戴いたします。不明点や詳細は担当者までご相談ください。

