レジディア北新宿 0501号室
1/1
レジディア北新宿 0501号室
#オートロック
#エレベーター
#宅配BOX
JR中央・総武線 / 大久保駅 徒歩7分
基本情報
物件名
レジディア北新宿
住所
東京都新宿区北新宿1丁目30-32
部屋番号
0501号室
最寄り駅
JR中央・総武線 / 大久保駅 徒歩7分 JR山手線 / 新大久保駅 徒歩9分 東京メトロ丸ノ内線 / 西新宿駅 徒歩10分
賃料
450,000円
共益費
25,000円
管理費
-
敷金
1ヶ月
礼金
1ヶ月
フリーレント
-
用途
住居
保険
加入要
保証会社
加入可
保証金
-
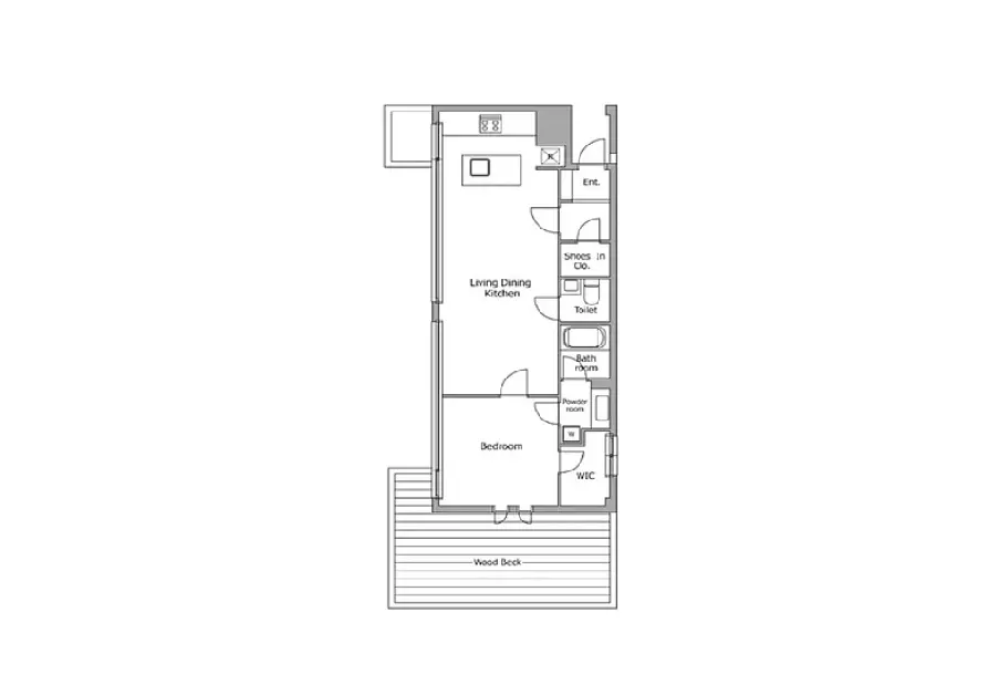
間取り
1LDK
専有面積
84.09㎡
築年数
1997年3月 (築29年)
方角
西
賃借種別
普通借家
賃借期間
2年間
物件特徴
低層レジデンス
特記事項
-
入居日
相談
構造
RC造(鉄筋コンクリート造)
所在階
5階
総階数
地上5階 / 地下1階
総戸数
26戸
エレベーター
あり
取引態様
媒介(仲介)
情報更新日
2026/01/05
設備
オートロック
エレベーター
宅配BOX
駐車場
駐輪場
ペット可
セキュリティー
オートロック
モニタ付インターホン
防犯カメラ
ダブルロックドア
設備
屋外駐輪場
駐車場
ウッドデッキ
駐車場
駐輪場
角部屋
共有部
エレベーター
宅配BOX
敷地内ゴミ置き場
バス・トイレ
オートバス
浴室乾燥機
タンクレストイレ
温水洗浄便座
追焚機能
B・T別
シャワー
トイレ
独立洗面台
洗面台
キッチン
3口以上コンロ
システムキッチン
室内設備
ウォークインクローゼット
シューズIC
照明器具
都市ガス
全居室フローリング
下水道
都市ガス給湯
エアコン
ビルトインエアコン
光回線
シューズボックス
フローリング
その他の特徴
ペット可
10分以内にコンビニがある
10分以内にスーパーがある
間取り
WIC
SIC
アクセスマップ
レジディア北新宿とは
都会の洗練を映すモノトーンの外観とガラス張りのエントランスが、落ち着きと開放感を両立させる居住空間です。地上5階建・鉄筋コンクリート造・総戸数26戸。1997年頃に竣工したこのレジデンスは、1R・1LDK・2LDKの3タイプを揃え、83.56㎡〜84.09㎡というゆとりある専有面積で、広くくつろげる居住空間を提供します。 室内はシンプルでスタイリッシュ。モノトーンの美意識を活かしつつ、個性を表現できる余白がある設計で、開放感のあるリビングが特長です。 セキュリティと生活利便性を両立。オートロック、宅配ロッカー、防犯カメラを完備。駐車場・駐輪場・ゴミ置き場など、日々の暮らしを支える設備が整います。 一部タイプには、バイクを室内へ運び込めるスペースを用意。コンクリート床ならではのメンテナンスもしやすい設計で、趣味と実用性を両立できます(タイプ限定)。 アクセスはJR総武線大久保駅へ徒歩7分、東京メトロ丸ノ内線西新宿駅へ11分、JR山手線新大久保駅へ約10分と、3路線の利便性を享受。周辺には商業施設や飲食店が点在し、生活利便性の高いエリアに位置しています。
この物件に近いおすすめ物件

アトラスタワー西新宿
東京メトロ丸ノ内線/西新宿駅 徒歩6分
318,000円(管理費:0円)
3LDK/65.34㎡

ディームス西早稲田
東京メトロ副都心線/西早稲田駅 徒歩6分
400,000円(管理費:20,000円)
2LDK/72.4㎡

プラティーヌ西新宿
東京メトロ丸ノ内線/西新宿駅 徒歩4分
480,000円(管理費:0円)
1LDK/116.9㎡

Prima Stella【プリマステラ】
東京メトロ丸ノ内線/西新宿駅 徒歩5分
535,000円(管理費:0円)
2LDK/91.75㎡

ラ・トゥール新宿ガーデン
東京メトロ副都心線/西早稲田駅 徒歩7分
1,020,000円(管理費:0円)
3LDK/140.19㎡
取り扱い不動産会社
株式会社東京オルガン不動産
所在地
所在地:
東京都渋谷区神宮前4-31-11 コスモ原宿ビル 702電話番号
電話番号:
03-5843-1513取引態様 / 宅地建物取引業免許
取引態様:
仲介 /宅地建物取引業免許:
東京都知事(1)第107236号備考
賃貸の場合 ■分譲賃貸マンションの場合、貸主様や代理不動産業者によって、家賃や管理費、敷金や礼金など賃貸借契約に関する設定が異なります。また、各お部屋の所有者様によって、設備や使用、内装などが変更されている場合もございます。 ■敷金や礼金、各種キャンペーンについてはお部屋ごとに異なる場合がございます。また、予告なく変更・終了する場合がございますのでお申込みの際は募集条件を担当者までご確認ください。 ■ペットの飼育やSOHO利用の可否については、建物の管理規約にて可能になっている場合でも、お部屋の所有者様の意向により禁止の場合もございます。 ■ご契約時には仲介手数料として賃料の1ヶ月分+税相当額を仲介手数料として頂戴いたします。 不明点や詳細は担当者までご相談ください。 購入の場合 ■販売価格等は予告なく変更されている場合がございます。不明点や詳細は担当者までご相談ください。 ■ご契約時には仲介手数料として販売価格の3%+6万円+税相当額を仲介手数料として頂戴いたします。 不明点や詳細は担当者までご相談ください。

