LOCUL【ローカル】 501号室
1/1
LOCUL【ローカル】 501号室
東京メトロ副都心線 / 明治神宮前〈原宿〉駅 徒歩1分
基本情報
物件名
LOCUL【ローカル】
住所
東京都渋谷区神宮前4-30-3
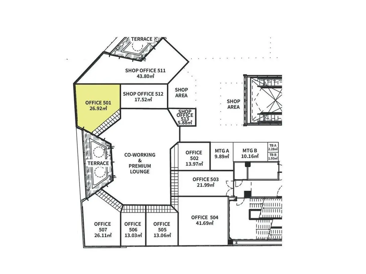
部屋番号
501号室
最寄り駅
東京メトロ副都心線 / 明治神宮前〈原宿〉駅 徒歩1分 JR山手線 / 原宿駅 徒歩5分
賃料
401,500円(税込)
共益費
30,470円(税込)
管理費
-
敷金
-
礼金
-
フリーレント
1ヶ月
用途
オフィス
保険
加入要
保証会社
加入可
保証金
3.1ヶ月
間取り
1R
専有面積
26.92㎡
坪数
8.14坪
築年数
2012年2月 (築13年)
方角
-
賃借種別
定期借家
賃借期間
2年間
物件特徴
-
特記事項
-
入居日
2025年12月上旬
構造
SRC造(鉄骨鉄筋コンクリート)
所在階
5階
総階数
地上7階 / 地下1階
総戸数
-
エレベーター
あり
取引態様
媒介(仲介)
情報更新日
2025/10/22
設備
共有部
エレベーター2基以上
室内設備
インターネット対応
その他の特徴
事務所利用相談
IT重説 対応物件
2ヶ月以内に入居相談可
10分以内にコンビニがある
10分以内にスーパーがある
10分以内に公園がある
10分以内に保育園・幼稚園がある
10分以内に小学校がある
事務所特徴
敷金3か月
大通り沿い
設備
角部屋
アクセスマップ
LOCUL【ローカル】とは
渋谷区の心地よい喧騒を背に、新たな文化と出会いが息づく商業施設の5階で、個性豊かな店舗とクリエイティブなオフィスが融合するフロアが誕生しました。これは単なる「売り買いの場」ではなく、体験・共感・共創を生むコミュニティースペースへと進化を遂げた場所です。カフェやラウンジが日々の憩いを提供し、イベントスペースでは常に新しい文化の芽が息吹き、ショップやワークプレイスは柔軟な発想で様々な可能性を広げています。出店のハードルを低くすることで、多様な業種業態の企業やクリエイターが自らの色を放つことができるよう設計されたこのフロアは、来訪者に新鮮な驚きと喜びを与えることでしょう。都会の中で、新しいスタイルの「街の文化」を育むこの空間は、明治神宮前駅からわずか1分というアクセスの良さも魅力の一つです。あなたもこの新しい商店街で、未来の流行を手掛けるかもしれません。
この物件に近いおすすめ物件

ラ・ポルト青山ビル【La Porte Aoyama】
東京メトロ銀座線/表参道駅 徒歩5分
440,000円(管理費:0円)
1R/28.44㎡

南青山MCビル
東京メトロ銀座線/表参道駅 徒歩6分
396,000円(管理費:0円)
1R/32.76㎡

etoile神宮前【エトワール神宮前】
東京メトロ副都心線/明治神宮前〈原宿〉駅 徒歩5分
310,200円(管理費:0円)
1R/22.92㎡
取り扱い不動産会社
株式会社東京オルガン不動産
所在地
所在地:
東京都渋谷区神宮前4-31-11 コスモ原宿ビル 702電話番号
電話番号:
03-5843-1513取引態様 / 宅地建物取引業免許
取引態様:
仲介 /宅地建物取引業免許:
東京都知事(1)第107236号同じ建物の賃貸物件一覧
画像
所在階
賃料
敷金/礼金
間取り
広さ
お問い合わせ
備考
賃貸の場合 ■分譲賃貸マンションの場合、貸主様や代理不動産業者によって、家賃や管理費、敷金や礼金など賃貸借契約に関する設定が異なります。また、各お部屋の所有者様によって、設備や使用、内装などが変更されている場合もございます。 ■敷金や礼金、各種キャンペーンについてはお部屋ごとに異なる場合がございます。また、予告なく変更・終了する場合がございますのでお申込みの際は募集条件を担当者までご確認ください。 ■ペットの飼育やSOHO利用の可否については、建物の管理規約にて可能になっている場合でも、お部屋の所有者様の意向により禁止の場合もございます。 ■ご契約時には仲介手数料として賃料の1ヶ月分+税相当額を仲介手数料として頂戴いたします。 不明点や詳細は担当者までご相談ください。


