レジディア島津山 1109号室
1/1
レジディア島津山 1109号室
#オートロック
#エレベーター
#宅配BOX
JR山手線 / 五反田駅 徒歩7分
基本情報
物件名
レジディア島津山
住所
東京都品川区東五反田1丁目2-42
部屋番号
1109号室
最寄り駅
JR山手線 / 五反田駅 徒歩7分 都営浅草線 / 五反田駅 徒歩6分 都営浅草線 / 高輪台駅 徒歩5分 東急池上線 / 五反田駅 徒歩7分 東急池上線 / 大崎広小路駅 徒歩12分
賃料
123,000円
共益費
10,000円
管理費
-
敷金
-
礼金
-
フリーレント
-
用途
住居
保険
加入要
保証会社
加入可
保証金
-
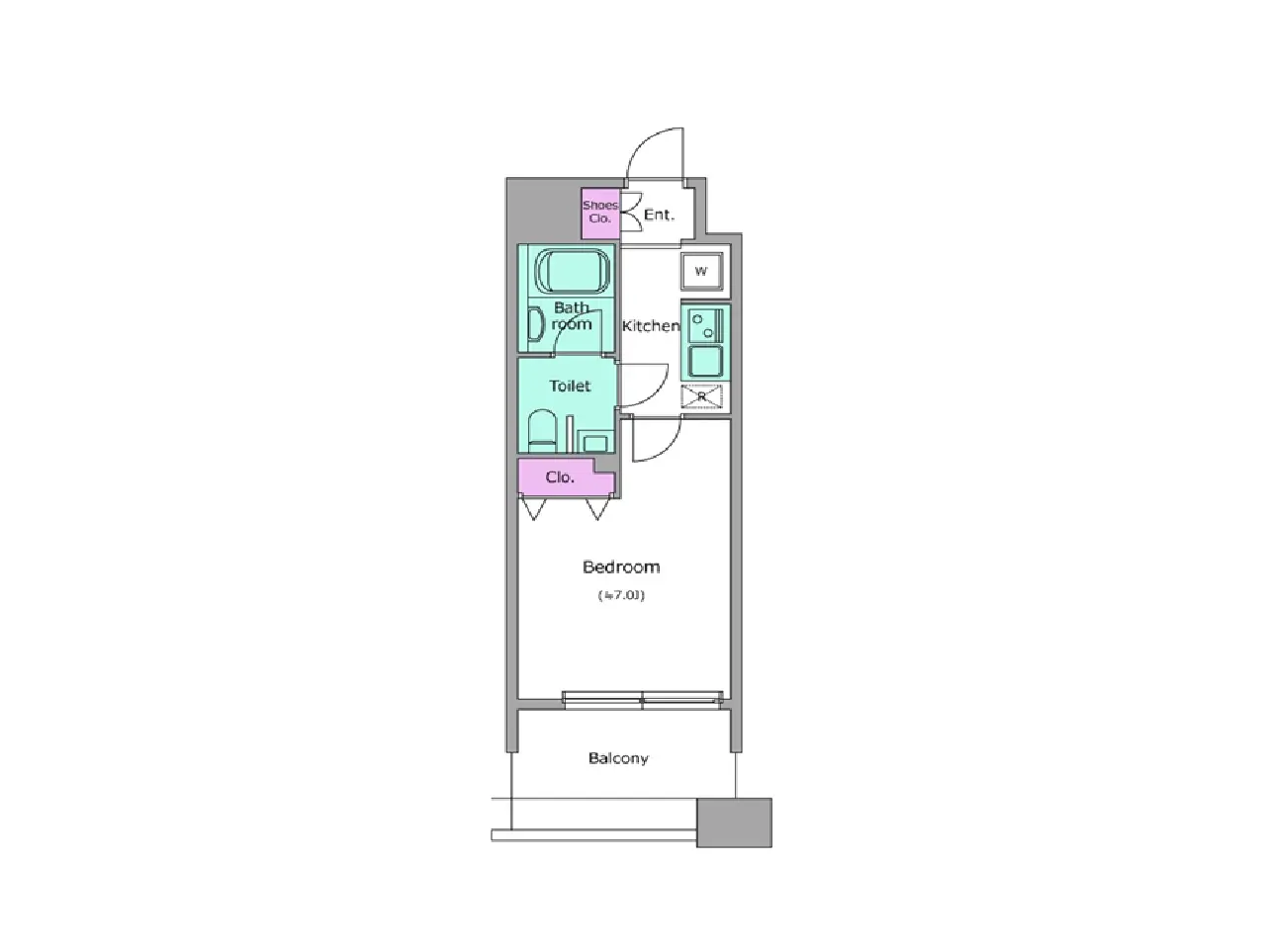
間取り
1K
専有面積
22.88㎡
築年数
2004年12月 (築22年)
方角
南東
賃借種別
普通借家
賃借期間
2年間
物件特徴
デザイナーズ
特記事項
更新料:1か月分 保証会社:IUCレジデンシャルサポート 初回契約時:40%、更新時:10,000円、月額1,000円 入居者限定会員サービス会費:11,000円/2年 ネット使用料:1,650円/月 鍵交換代:22,000円 住宅保険:21,500円/2年
入居日
即入居可
構造
RC造(鉄筋コンクリート造)
所在階
11階
総階数
地上13階
総戸数
115戸
エレベーター
あり
取引態様
媒介(仲介)
情報更新日
2025/11/01
設備
オートロック
エレベーター
宅配BOX
駐輪場
セキュリティー
オートロック
モニタ付インターホン
防犯カメラ
管理人有り (常駐)
共有部
エレベーター
エレベーター2基以上
宅配BOX
敷地内ゴミ置き場
24時間ゴミ出し可
設備
バイク置き場
バイク置き場
駐輪場
バルコニー
バス・トイレ
浴室乾燥機
温水洗浄便座
B・T別
独立洗面台
キッチン
2口コンロ
システムキッチン
室内設備
クローゼット
エアコン
CS
BS端子
CATV
シューズボックス
フローリング
その他の特徴
即入居可
アクセスマップ
レジディア島津山とは
品川区東五反田に位置する高級賃貸マンションは、2005年に竣工した洗練されたデザインの建物です。地上13階、地下1階建てのこの物件は、115戸の住居があり、多様なライフスタイルに適応した間取りを提供しています。最寄り駅はJR山手線「五反田駅」で、徒歩7分の距離にあり、都営浅草線「高輪台駅」も徒歩5分で利用可能です。これにより、都心へも容易にアクセスできる便利な立地です。 外観は石造り調の高級感あふれるデザインで、周辺の自然環境とも調和しています。室内には、快適な生活をサポートするための充実した設備が整っており、オートバス、浴室乾燥機、温水洗浄便座などが完備されています。また、セキュリティ面でもオートロックや防犯カメラが設置されており、安全な住環境が確保されています。 周辺には、日常の買い物に便利なスーパーやコンビニが点在し、緑豊かな池田山公園も徒歩圏内に位置しています。これにより、利便性と自然を同時に享受できる魅力的なエリアです。特に、居住空間と周辺環境の両方で快適な生活を求める方にとって最適な選択肢となるでしょう。
この物件に近いおすすめ物件

グラントゥルース目黒花房山
都営浅草線/五反田駅 徒歩8分
99,000円(管理費:6,000円)
1K/19.07㎡

トーシンフェニックス五反田
東急池上線/大崎広小路駅 徒歩6分
93,000円(管理費:10,000円)
1K/22.55㎡

メインステージ五反田駅前
東急池上線/大崎広小路駅 徒歩8分
110,000円(管理費:15,000円)
1K/23.37㎡

プリヴィレージュ目黒南
東急池上線/五反田駅 徒歩9分
103,000円(管理費:35,000円)
1K/20.47㎡

リビオメゾン戸越銀座
東急池上線/大崎広小路駅 徒歩9分
119,000円(管理費:10,000円)
1K/22.1㎡

ロアール目黒不動前
東急池上線/五反田駅 徒歩14分
95,000円(管理費:10,000円)
1K/22.77㎡

ザ・パークハビオ目黒桜邸
東急池上線/五反田駅 徒歩11分
140,000円(管理費:15,000円)
1K/23.15㎡

パークウェルツインズ戸越銀座弐番館
東急池上線/大崎広小路駅 徒歩10分
85,000円(管理費:10,000円)
1K/21.84㎡

プライムアーバン大崎
都営浅草線/五反田駅 徒歩8分
105,000円(管理費:0円)
1K/21.17㎡

グランド・ガーラ五反田
東急目黒線/不動前駅 徒歩7分
73,500円(管理費:15,000円)
1K/19.21㎡
取り扱い不動産会社
株式会社東京オルガン不動産
所在地
所在地:
東京都渋谷区神宮前4-31-11 コスモ原宿ビル 702電話番号
電話番号:
03-5843-1513取引態様 / 宅地建物取引業免許
取引態様:
仲介 /宅地建物取引業免許:
東京都知事(1)第107236号備考
賃貸の場合 ■分譲賃貸マンションの場合、貸主様や代理不動産業者によって、家賃や管理費、敷金や礼金など賃貸借契約に関する設定が異なります。また、各お部の所有者様によって、設備や使用、内装などが変更されている場合もございます。 ■敷金や礼金、各種キャンペーンについてはお部屋ごとに異なる場合がございます。また、予告なく変更・終了する場合がございますのでお申込みの際は募集条件を担当者までご確認ください。 ■ペットの飼育やSOHO利用の可否については、建物の管理規約にて可能になっている場合でも、お部屋の所有者様の意向により禁止の場合もございます。 ■ご契約時には仲介手数料として賃料の1ヶ月分+税相当額を仲介手数料として頂戴いたします。 不明点や詳細は担当者までご相談ください。

