スカイヒル 一棟貸し
1/1
スカイヒル 一棟貸し
東京メトロ副都心線 / 北参道駅 徒歩4分
基本情報
物件名
スカイヒル
住所
東京都渋谷区千駄ヶ谷3-23-8
部屋番号
一棟貸し
最寄り駅
東京メトロ副都心線 / 北参道駅 徒歩4分 都営大江戸線 / 国立競技場駅 徒歩9分
賃料
3,300,000円(税込)
共益費
-
管理費
-
敷金
-
礼金
-
フリーレント
-
用途
オフィス 店舗
保険
加入要
保証会社
加入可
保証金
6ヶ月分
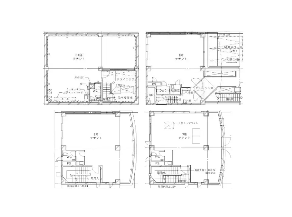
間取り
4R
専有面積
335.11㎡
坪数
101.37坪
築年数
1986年4月 (築39年)
方角
-
賃借種別
普通借家
賃借期間
5年間
物件特徴
路面店
特記事項
-
入居日
即入居可
構造
RC造(鉄筋コンクリート造)
所在階
1階
総階数
地上3階 / 地下1階
総戸数
4戸
エレベーター
なし
取引態様
媒介(仲介)
情報更新日
2025/11/13
設備
駐車場
設備
平置き
駐車場
駐車場
角部屋
バス・トイレ
トイレ
室内設備
上水道
下水道
電気
エアコン
エアコン2台以上
ビルトインエアコン
インターネット対応
光回線
その他の特徴
IT重説 対応物件
定期借家を含まない
10分以内にコンビニがある
10分以内にスーパーがある
10分以内に公園がある
10分以内に保育園・幼稚園がある
10分以内に小学校がある
事務所特徴
1フロア1テナント
土曜日利用可
土日・祝日利用可
個別空調
個別空間
閑静な場所
店舗特徴
1フロア1テナント
土曜日利用可
土日・祝日利用可
閑静な場所
アクセスマップ
スカイヒルとは
広々とした窓面が特徴の開放的な一棟貸し物件が登場しました。アクセス便利。新耐震基準をクリアした鉄筋コンクリート造の安心の構造です。店舗や事務所としての利用が可能で、フロア貸しの相談も受け付けています。各フロアには個別空調とトイレが完備されており、業種の相談も柔軟に対応可能です。 日商保利用時(保証会社)は保証金が0ヶ月という魅力的な条件も見逃せません。最寄り駅からのアクセスも良好で、周囲には多彩な商業施設が揃っており、ビジネスシーンにも打ってつけの立地です。詳細情報や室内写真については、お気軽にスタッフまでお問い合わせください。あなたのビジネスの新たな拠点として、ぜひご検討ください。
この物件に近いおすすめ物件

PORTAL POINT HARAJUKU
東京メトロ副都心線/北参道駅 徒歩5分
3,850,000円(管理費:0円)
1R/235.8㎡

ゼニス南新宿
JR山手線/代々木駅 徒歩4分
3,239,300円(管理費:0円)
1R/369.26㎡

代々木TRビル
JR山手線/代々木駅 徒歩3分
2,946,500円(管理費:0円)
1R/374.65㎡

プライム千駄ヶ谷 旧)JPR千駄ヶ谷ビル
東京メトロ副都心線/北参道駅 徒歩4分
2,998,314円(管理費:0円)
1R/237.12㎡
取り扱い不動産会社
株式会社東京オルガン不動産
所在地
所在地:
東京都渋谷区神宮前4-31-11 コスモ原宿ビル 702電話番号
電話番号:
03-5843-1513取引態様 / 宅地建物取引業免許
取引態様:
仲介 /宅地建物取引業免許:
東京都知事(1)第107236号備考
賃貸の場合 ■分譲賃貸マンションの場合、貸主様や代理不動産業者によって、家賃や管理費、敷金や礼金など賃貸借契約に関する設定が異なります。また、各お部屋の所有者様によって、設備や使用、内装などが変更されている場合もございます。 ■敷金や礼金、各種キャンペーンについてはお部屋ごとに異なる場合がございます。また、予告なく変更・終了する場合がございますのでお申込みの際は募集条件を担当者までご確認ください。 ■ペットの飼育やSOHO利用の可否については、建物の管理規約にて可能になっている場合でも、お部屋の所有者様の意向により禁止の場合もございます。 ■ご契約時には仲介手数料として賃料の1ヶ月分+税相当額を仲介手数料として頂戴いたします。 不明点や詳細は担当者までご相談ください。 購入の場合 ■販売価格等は予告なく変更されている場合がございます。不明点や詳細は担当者までご相談ください。 ■ご契約時には仲介手数料として販売価格の3%+6万円+税相当額を仲介手数料として頂戴いたします。 不明点や詳細は担当者までご相談ください。

