クレインズパーク 6階
1/1
クレインズパーク 6階
#24時間セキュリティー
#エレベーター
東京メトロ副都心線 / 明治神宮前〈原宿〉駅 徒歩6分
基本情報
物件名
クレインズパーク
住所
東京都渋谷区神宮前6丁目18-1
部屋番号
6階
最寄り駅
東京メトロ副都心線 / 明治神宮前〈原宿〉駅 徒歩6分 東急東横線 / 渋谷駅 徒歩8分 東京メトロ副都心線 / 渋谷駅 徒歩8分
賃料
2,585,000円(税込)
共益費
-
管理費
-
敷金
8ヶ月
礼金
-
フリーレント
-
用途
オフィス
保険
加入要
保証会社
加入可
保証金
-
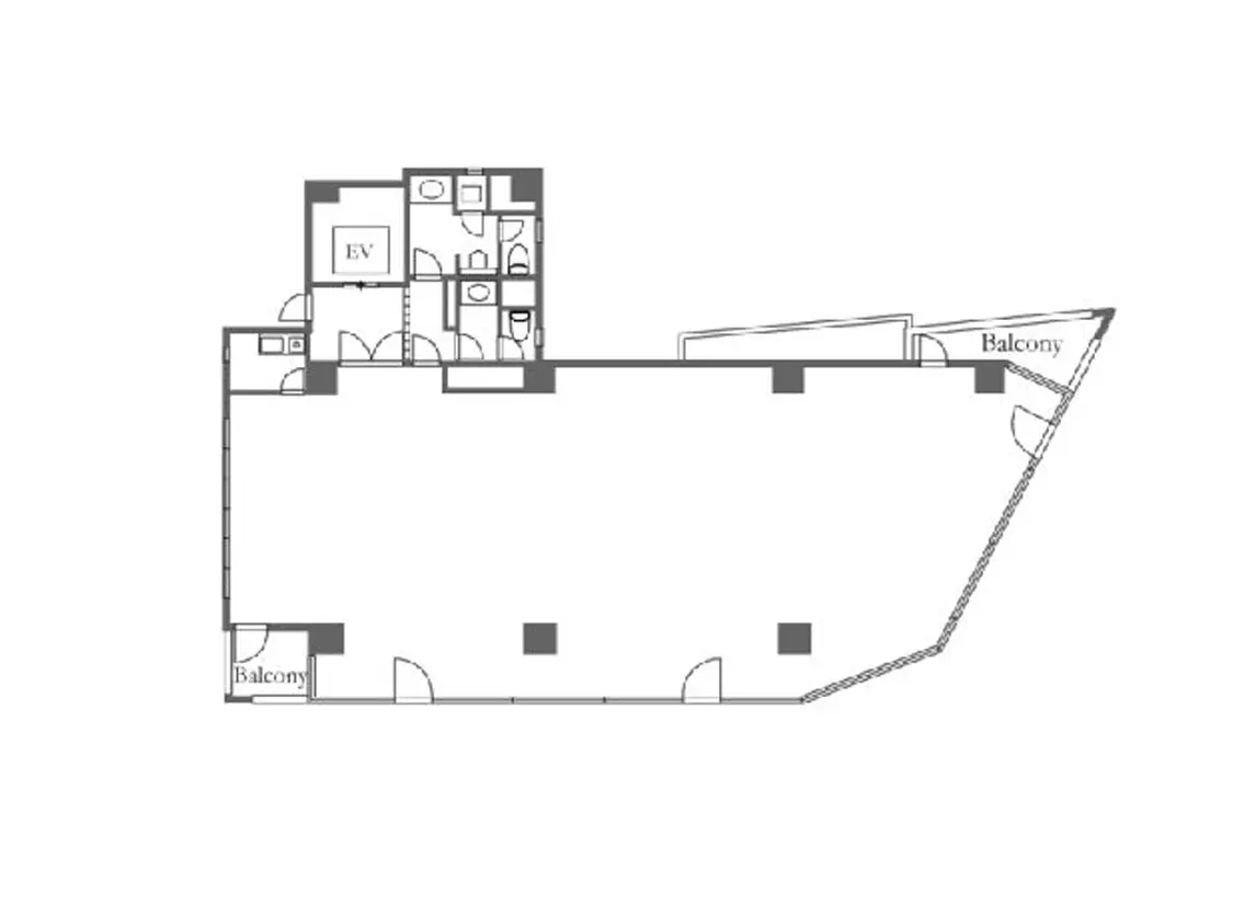
間取り
1R
専有面積
221.32㎡
坪数
66.94坪
築年数
1991年11月 (築35年)
方角
-
賃借種別
普通借家
賃借期間
2年間
物件特徴
楽器可
特記事項
天井高:2700mm
入居日
2026年3月
構造
SRC造(鉄骨鉄筋コンクリート)
所在階
6階
総階数
地上8階
総戸数
-
エレベーター
1基
取引態様
媒介(仲介)
情報更新日
2026/03/11
設備
24時間セキュリティー
エレベーター
セキュリティー
防犯カメラ
24時間セキュリティー
共有部
エレベーター
バス・トイレ
トイレ2ヶ所
トイレ
洗面台
室内設備
エアコン
インターネット対応
設備
2面バルコニー
バルコニー
3面採光
角部屋
その他の特徴
事務所利用相談
IT重説 対応物件
定期借家を含まない
10分以内にコンビニがある
10分以内にスーパーがある
10分以内に公園がある
事務所特徴
居抜き
1フロア1テナント
個別空調
男女トイレ別
大通り沿い
角地
キッチン
ミニキッチン
アクセスマップ
クレインズパークとは
渋谷区神宮前、賑やかなキャットストリート沿いに位置する賃貸オフィス・事務所物件です。東京メトロ副都心線明治神宮前駅から徒歩わずか5分という好立地で、渋谷や原宿へのアクセスもスムーズです。周囲には多くのアパレルショップや飲食店が立ち並び、流行の最先端を感じられるエリアとなっております。 外観は広い窓を持ち、高級感のある印象を与えています。24時間利用可能な施設で、機械警備も完備されており、セキュリティ面でも安心の環境です。1フロア1テナントの設計で、広々としたOAフロアを有し、専有部分には男女別のトイレが完備されています。さらに、個別空調が整備されており、快適なオフィス環境を実現しています。 また、徒歩3分のバス停からは池袋、新宿、表参道などへのダイレクトアクセスが可能で、ビジネスにおいても非常に利便性の高い立地です。このエリアの特性を活かし、ビジネスのシーンだけでなく、クリエイティブな活動にも最適な環境が整っています。
この物件に近いおすすめ物件

J6
東京メトロ副都心線/明治神宮前〈原宿〉駅 徒歩2分
3,000,000円(管理費:0円)
1R/159.71㎡

ラグラシア表参道【LAGRACIA表参道】
東京メトロ銀座線/表参道駅 徒歩6分
2,370,060円(管理費:0円)
1R/187.45㎡

HACOJINGUMAE【ハコ ジングウマエ】(旧:(仮称)神宮前二丁目新築PJ)
東京メトロ副都心線/北参道駅 徒歩9分
1,820,940円(管理費:0円)
2R/182.44㎡

井門神宮前六丁目ビル
東京メトロ副都心線/明治神宮前〈原宿〉駅 徒歩7分
1,866,634円(管理費:0円)
1R/243.91㎡

VORT AOYAMAⅡ【ボルト青山2】
東京メトロ副都心線/渋谷駅 徒歩7分
1,981,628円(管理費:0円)
1R/205.36㎡

神宮前IKビル【神宮前アイケービル】
東京メトロ銀座線/外苑前駅 徒歩5分
2,046,011円(管理費:0円)
5R/267.35㎡

祐真ビル本館
東急田園都市線/渋谷駅 徒歩5分
2,004,090円(管理費:267,212円)
1R/200.76㎡

いちご渋谷宇田川町ビル
東京メトロ半蔵門線/渋谷駅 徒歩7分
2,831,400円(管理費:0円)
1R/188.76㎡

The iceCubes【ジアイスキューブス】
東京メトロ副都心線/明治神宮前〈原宿〉駅 徒歩2分
2,472,371円(管理費:0円)
1R/172.8㎡
取り扱い不動産会社
株式会社東京オルガン不動産
所在地
所在地:
東京都渋谷区神宮前4-31-11 コスモ原宿ビル 702電話番号
電話番号:
03-5843-1513取引態様 / 宅地建物取引業免許
取引態様:
仲介 /宅地建物取引業免許:
東京都知事(1)第107236号備考
賃貸の場合 ■分譲賃貸マンションの場合、貸主様や代理不動産業者によって、家賃や管理費、敷金や礼金など賃貸借契約に関する設定が異なります。また、各お部屋の所有者様によって、設備や使用、内装などが変更されている場合もございます。 ■敷金や礼金、各種キャンペーンについてはお部屋ごとに異なる場合がございます。また、予告なく変更・終了する場合がございますのでお申込みの際は募集条件を担当者までご確認ください。 ■ペットの飼育やSOHO利用の可否については、建物の管理規約にて可能になっている場合でも、お部屋の所有者様の意向により禁止の場合もございます。 ■ご契約時には仲介手数料として賃料の1ヶ月分+税相当額を仲介手数料として頂戴いたします。 不明点や詳細は担当者までご相談ください。

