メゾン青山 10階
1/1
メゾン青山 10階
#エレベーター
東京メトロ銀座線 / 外苑前駅 徒歩2分
基本情報
物件名
メゾン青山
住所
東京都港区北青山2丁目7-26
部屋番号
10階
最寄り駅
東京メトロ銀座線 / 外苑前駅 徒歩2分 都営大江戸線 / 青山一丁目駅 徒歩8分 東京メトロ半蔵門線 / 青山一丁目駅 徒歩9分 東京メトロ銀座線 / 青山一丁目駅 徒歩9分 東京メトロ銀座線 / 表参道駅 徒歩11分 東京メトロ千代田線 / 表参道駅 徒歩11分 東京メトロ半蔵門線 / 表参道駅 徒歩11分
賃料
220,000円(税込)
共益費
-
管理費
11,000円(税込)
敷金
3ヶ月
礼金
1ヶ月
フリーレント
-
用途
オフィス
保険
加入要
保証会社
加入可
保証金
-
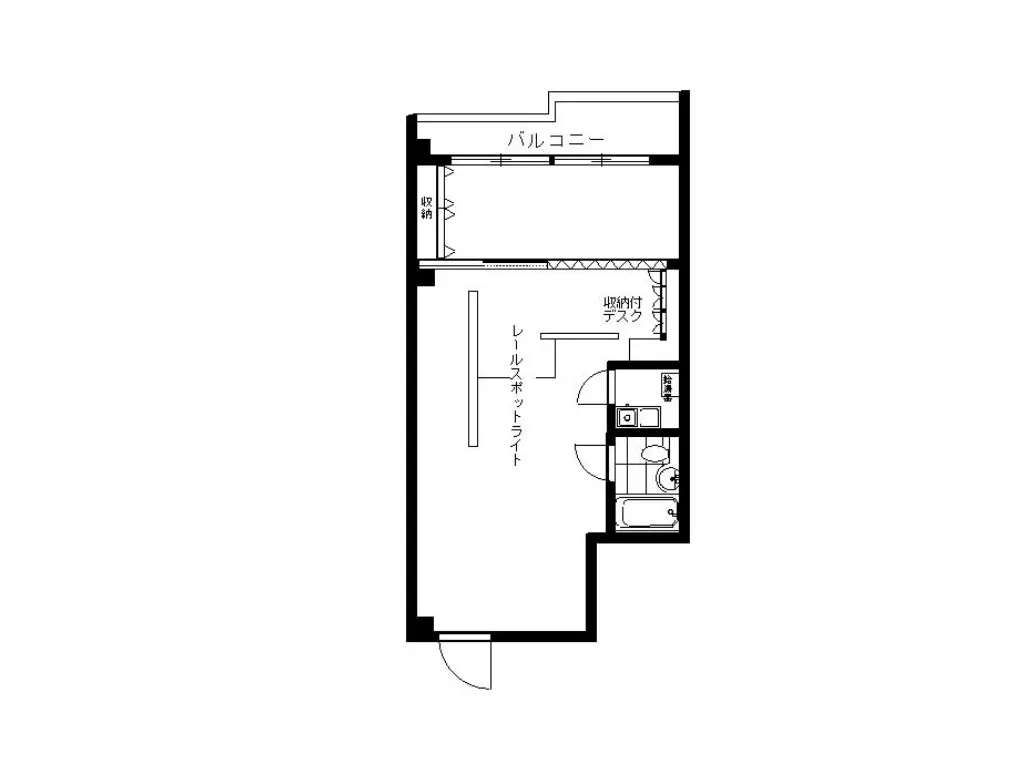
間取り
1R
専有面積
42.88㎡
坪数
12.97坪
築年数
1971年9月 (築54年)
方角
-
賃借種別
普通借家
賃借期間
2年間
物件特徴
ヴィンテージ
特記事項
引越しは土日のみ:9:00~17:00
入居日
相談
構造
SRC造(鉄骨鉄筋コンクリート)
所在階
10階
総階数
地上12階
総戸数
49戸
エレベーター
あり
取引態様
媒介(仲介)
情報更新日
2025/11/24
設備
エレベーター
セキュリティー
防犯カメラ
管理人有り (巡回)
設備
普通二輪 (400cc以下)
屋外駐輪場
駐車場
バイク置き場
バルコニー
共有部
エレベーター
敷地内ゴミ置き場
バス・トイレ
B・T同室
トイレ
洗面台
室内設備
収納スペース
全居室収納
ダウンライト
照明器具
エアコン
インターネット対応
フローリング
その他の特徴
事務所利用相談
IT重説 対応物件
1ヶ月以内に入居相談可
2ヶ月以内に入居相談可
定期借家を含まない
10分以内にコンビニがある
10分以内にスーパーがある
10分以内に公園がある
事務所特徴
個別空調
大通り沿い
キッチン
ミニキッチン
アクセスマップ
メゾン青山とは
東京都港区の落ち着いた住宅街にたたずむ、1971年竣工の歴史を感じる12階建てのマンション。外苑前駅からわずか徒歩2分の立地に位置し、都会の利便性と静かな住環境を兼ね備えています。ベージュ色を基調とした外観は、上品でモダンな雰囲気を放ち、2011年に共用部分のリフォームを経て、より清潔感と安心感を提供します。 管理人が常駐し、安心のセキュリティ体制のもと、居住者の日々の暮らしをサポート。館内にはコンビニエンスストアがあり、日常の買い物に便利です。49戸のこのマンションは、様々なライフスタイルに合わせたワンルームから2LDKの間取りを備えており、リフォーム済みの室内は、綺麗で快適な居住空間を実現しています。 各室にはバス・トイレ別、独立洗面台を完備し、収納スペースも豊富に取られており、片付けたい荷物もスッキリと収められます。また、お部屋によっては、事務所利用も可能で、SOHOや自宅オフィスとしても最適な環境です。 周辺にはスーパーや飲食店が充実しており、日々の生活がより豊かになること間違いなし。さらに、近隣にはバス停もあり、六本木ヒルズや西麻布へのアクセスもスムーズです。都心での快適な生活をお望みの方に、このマンションは最適な場所です。
この物件に近いおすすめ物件

ガーデン原宿
東京メトロ副都心線/明治神宮前〈原宿〉駅 徒歩5分
228,000円(管理費:0円)
1LDK/37.38㎡

秀和外苑レジデンス
東京メトロ銀座線/外苑前駅 徒歩7分
264,000円(管理費:16,500円)
1R/36.36㎡

Modelia Brut表参道 【モデリアブリュット表参道】
東京メトロ副都心線/明治神宮前〈原宿〉駅 徒歩5分
246,000円(管理費:10,000円)
1R/36.31㎡

Hisui Apartment【ヒスイアパートメント】
東京メトロ副都心線/明治神宮前〈原宿〉駅 徒歩9分
195,000円(管理費:6,000円)
1R/36.27㎡

日興パレス外苑
都営大江戸線/国立競技場駅 徒歩8分
204,000円(管理費:11,000円)
2LDK/54.8㎡

アマデウスハウス
東京メトロ銀座線/外苑前駅 徒歩6分
220,000円(管理費:0円)
1R/40.96㎡

ヴィラ瑛
東京メトロ銀座線/外苑前駅 徒歩8分
165,000円(管理費:0円)
1R/36.04㎡

メゾン岡田
東京メトロ銀座線/表参道駅 徒歩6分
297,000円(管理費:0円)
1R/36.37㎡

アロープラザ原宿
東京メトロ副都心線/明治神宮前〈原宿〉駅 徒歩5分
290,000円(管理費:0円)
1R/37.62㎡

ビラ・モデルナ【ヴィラ・モデルナ】
東急東横線/渋谷駅 徒歩6分
293,700円(管理費:0円)
1R/40.16㎡
取り扱い不動産会社
株式会社東京オルガン不動産
所在地
所在地:
東京都渋谷区神宮前4-31-11 コスモ原宿ビル 702電話番号
電話番号:
03-5843-1513取引態様 / 宅地建物取引業免許
取引態様:
仲介 /宅地建物取引業免許:
東京都知事(1)第107236号備考
賃貸の場合 ■分譲賃貸マンションの場合、貸主様や代理不動産業者によって、家賃や管理費、敷金や礼金など賃貸借契約に関する設定が異なります。また、各お部屋の所有者様によって、設備や使用、内装などが変更されている場合もございます。 ■敷金や礼金、各種キャンペーンについてはお部屋ごとに異なる場合がございます。また、予告なく変更・終了する場合がございますのでお申込みの際は募集条件を担当者までご確認ください。 ■ペットの飼育やSOHO利用の可否については、建物の管理規約にて可能になっている場合でも、お部屋の所有者様の意向により禁止の場合もございます。 ■ご契約時には仲介手数料として賃料の1ヶ月分+税相当額を仲介手数料として頂戴いたします。 不明点や詳細は担当者までご相談ください。

