クオリタス南大井 908号室
1/1
クオリタス南大井 908号室
#オートロック
#エレベーター
#宅配BOX
JR京浜東北線 / 大森駅 徒歩11分
基本情報
物件名
クオリタス南大井
住所
東京都品川区南大井2丁目8-1
部屋番号
908号室
最寄り駅
JR京浜東北線 / 大森駅 徒歩11分
賃料
99,000円
共益費
-
管理費
15,000円
敷金
-
礼金
0.5ヶ月
フリーレント
-
用途
住居
保険
加入要
保証会社
加入可
保証金
-
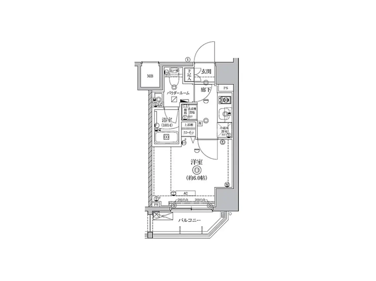
間取り
1K
専有面積
20.2㎡
築年数
2021年12月 (築5年)
方角
南
賃借種別
普通借家
賃借期間
2年間
物件特徴
ペット可
特記事項
更新料:1か月分 損害保険:要 23,000円/2年 保証会社:Jリース・セゾン30%、オリコ50% 鍵交換代:22,000円 退去時清掃費:55,000円 別途AC洗浄:16,500円/一基
入居日
12月20日
構造
RC造(鉄筋コンクリート造)
所在階
9階
総階数
地上12階
総戸数
81戸
エレベーター
あり
取引態様
媒介(仲介)
情報更新日
2025/11/20
設備
オートロック
エレベーター
宅配BOX
ペット可
セキュリティー
オートロック
モニタ付インターホン
防犯カメラ
設備
屋内駐輪場
駐車場
バイク置き場
バルコニー
共有部
エレベーター
宅配BOX
敷地内ゴミ置き場
24時間ゴミ出し可
内廊下
バス・トイレ
浴室乾燥機
温水洗浄便座
B・T別
キッチン
2口コンロ
システムキッチン
ガスコンロ付
室内設備
クローゼット
都市ガス
下水道
エアコン
CS
BS端子
インターネット無料
シューズボックス
その他の特徴
ペット可
二人入居可
アクセスマップ
クオリタス南大井とは
品川区南大井に位置するこちらのマンションは、2022年に竣工したモダンなデザインの12階建てです。京急本線の大森海岸駅から徒歩8分、利便性に優れた立地で、周辺にはスーパーマーケットやコンビニ、総合病院も揃っており、生活に必要な施設が充実しています。 総戸数81戸を誇るこのマンションは、ペット飼育が可能で、特に小型犬や猫との生活を希望される方に人気があります。部屋にはガスシステムキッチンや独立洗面台、浴室乾燥機など、快適な生活をサポートする充実した設備が整っています。さらに、インターネット使用料が無料で提供されており、自宅での快適なネット環境も確保されています。 共用設備としては、24時間対応のゴミ置き場や宅配ボックスがあり、忙しいライフスタイルにも柔軟に対応。セキュリティ面でもオートロックや防犯カメラを完備しており、安心して暮らすことができます。 豊かな自然と利便性を兼ね備えた品川区南大井で、理想的な新生活を始めてみませんか。
この物件に近いおすすめ物件

メインステージ大森海岸
JR京浜東北線/大森駅 徒歩9分
76,000円(管理費:9,000円)
1K/18.09㎡

レジディア大森II
JR京浜東北線/大森駅 徒歩3分
132,000円(管理費:9,000円)
1K/21.1㎡

ルフォンブランシェ品川南大井
JR京浜東北線/大森駅 徒歩10分
144,000円(管理費:0円)
1DK/30.42㎡

プライマル大森
JR京浜東北線/大森駅 徒歩7分
104,000円(管理費:8,000円)
1K/21.32㎡

藤和シティコープ大森
JR京浜東北線/大森駅 徒歩7分
80,000円(管理費:0円)
1K/23.11㎡

メイツ品川南
JR京浜東北線/大森駅 徒歩10分
81,000円(管理費:9,000円)
1K/22.8㎡

ル・リオン南大井
JR京浜東北線/大森駅 徒歩11分
150,000円(管理費:10,000円)
1LDK/42.4㎡

クオリタス品川南
JR京浜東北線/大森駅 徒歩10分
95,000円(管理費:15,000円)
1K/22.64㎡

スカイコート品川パークサイド
JR京浜東北線/大森駅 徒歩12分
87,000円(管理費:3,000円)
1K/21㎡

ALTERNA南大井
JR京浜東北線/大森駅 徒歩9分
114,000円(管理費:10,000円)
1K/21.7㎡
取り扱い不動産会社
株式会社東京オルガン不動産
所在地
所在地:
東京都渋谷区神宮前4-31-11 コスモ原宿ビル 702電話番号
電話番号:
03-5843-1513取引態様 / 宅地建物取引業免許
取引態様:
仲介 /宅地建物取引業免許:
東京都知事(1)第107236号備考
賃貸の場合 ■分譲賃貸マンションの場合、貸主様や代理不動産業者によって、家賃や管理費、敷金や礼金など賃貸借契約に関する設定が異なります。また、各お部の所有者様によって、設備や使用、内装などが変更されている場合もございます。 ■敷金や礼金、各種キャンペーンについてはお部屋ごとに異なる場合がございます。また、予告なく変更・終了する場合がございますのでお申込みの際は募集条件を担当者までご確認ください。 ■ペットの飼育やSOHO利用の可否については、建物の管理規約にて可能になっている場合でも、お部屋の所有者様の意向により禁止の場合もございます。 ■ご契約時には仲介手数料として賃料の1ヶ月分+税相当額を仲介手数料として頂戴いたします。 不明点や詳細は担当者までご相談ください。

