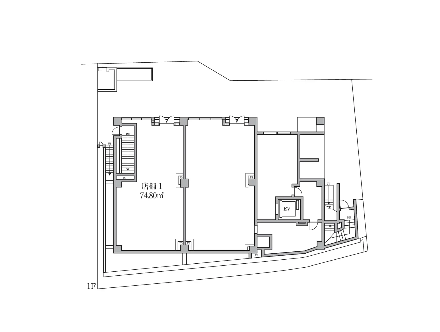
豊匯ビル【ほうかいビル】 1階 店舗-1
1/1
豊匯ビル【ほうかいビル】 1階 店舗-1
#オートロック
#エレベーター
東京メトロ半蔵門線 / 表参道駅 徒歩6分
基本情報
物件名
豊匯ビル【ほうかいビル】
住所
東京都渋谷区神宮前5丁目42-14
部屋番号
1階 店舗-1
最寄り駅
東京メトロ半蔵門線 / 表参道駅 徒歩6分 東京メトロ銀座線 / 表参道駅 徒歩6分 東京メトロ千代田線 / 表参道駅 徒歩6分 東京メトロ副都心線 / 明治神宮前〈原宿〉駅 徒歩6分
賃料
896,148円(税込)
共益費
-
管理費
-
敷金
-
礼金
1ヶ月
フリーレント
1ヶ月
用途
店舗
保険
加入要
保証会社
加入可
保証金
5ヶ月(償却:15%+税)
間取り
1R
専有面積
74.8㎡
坪数
32.63坪
築年数
2025年6月 (築1年)
方角
-
賃借種別
定期借家
賃借期間
5年間
物件特徴
路面店
特記事項
-
入居日
即日
構造
RC造(鉄筋コンクリート造)
所在階
1階
総階数
地上5階 / 地下1階
総戸数
-
エレベーター
1基
取引態様
媒介(仲介)
情報更新日
2026/04/13
設備
オートロック
エレベーター
セキュリティー
オートロック
防犯カメラ
共有部
エレベーター
敷地内ゴミ置き場
その他の特徴
IT重説 対応物件
10分以内にコンビニがある
10分以内にスーパーがある
10分以内に公園がある
10分以内に保育園・幼稚園がある
10分以内に小学校がある
店舗特徴
飲食店不可
スケルトン
土曜日利用可
土日・祝日利用可
小売り・販売
美容室
エステ・サロン
クリニック
塾・スクール
スタジオ・ジム
路面店
閑静な場所
アクセスマップ
豊匯ビル【ほうかいビル】とは
神宮前に位置する新築の店舗物件は、2025年7月に完成予定で、地上5階地下1階建てのモダンなデザインが特長です。広さは169.94㎡(51.40坪)で、賃料は197.89万円、管理費は56,080円となっており、初期費用を軽減するためにフリーレントが1ヶ月設けられています。利便性の高い立地は、表参道駅から徒歩7分、明治神宮前駅からは10分、原宿駅からも12分の距離にあり、多くの人々が行き交うエリアです。 この物件は美容室やエステサロン、ファッション・雑貨の小売などの業種に対応しており、飲食業は不可ですが、幅広いビジネスニーズに応えることができます。地元のトレンドを反映した店舗を構えることで、多くの顧客を引き寄せることが期待されます。 また、地下1階には空調機器が既に設置されており、快適な営業環境が整っています。契約期間は5年で、解約時には15%の償却が適用されますので、長期的なビジネス展開を考える方にも適した物件です。神宮前の活気あふれる街並みで、新たなビジネスをスタートさせる絶好のチャンスです。
この物件に近いおすすめ物件

RMS原宿ビル【アールエムエス原宿ビル】
東京メトロ副都心線/明治神宮前〈原宿〉駅 徒歩9分
649,000円(管理費:0円)
1R/88.29㎡

NOZUビル【野津ビル】
東京メトロ副都心線/明治神宮前〈原宿〉駅 徒歩7分
715,000円(管理費:110,000円)
1R/69.09㎡

ファウンテンビル
東京メトロ副都心線/明治神宮前〈原宿〉駅 徒歩7分
660,000円(管理費:0円)
1R/54.33㎡

ジュマペール原宿
JR山手線/原宿駅 徒歩3分
880,000円(管理費:0円)
1R/67.66㎡

東京セントラル表参道
東京メトロ銀座線/表参道駅 徒歩3分
437,500円(管理費:0円)
1R/57.85㎡

Concordia Omotesando【コンコルディア 表参道】
東京メトロ半蔵門線/表参道駅 徒歩5分
893,640円(管理費:0円)
1R/67.17㎡

RUBY ANGEL表参道
東京メトロ千代田線/表参道駅 徒歩4分
1,129,436円(管理費:0円)
1R/89.35㎡

AIHARAⅡ【アイハラⅡ】
東京メトロ副都心線/明治神宮前〈原宿〉駅 徒歩4分
880,000円(管理費:0円)
2R/74.77㎡

Barbizon98【バルビゾン98】
東京メトロ副都心線/渋谷駅 徒歩5分
682,000円(管理費:0円)
1R/57.66㎡

Stones Court表参道【ストーンズコート表参道】
東京メトロ銀座線/表参道駅 徒歩6分
792,000円(管理費:0円)
1R/57.25㎡
取り扱い不動産会社
株式会社東京オルガン不動産
所在地
所在地:
東京都渋谷区神宮前4-31-11 コスモ原宿ビル 702電話番号
電話番号:
03-5843-1513取引態様 / 宅地建物取引業免許
取引態様:
仲介 /宅地建物取引業免許:
東京都知事(1)第107236号備考
賃貸の場合 ■分譲賃貸マンションの場合、貸主様や代理不動産業者によって、家賃や管理費、敷金や礼金など賃貸借契約に関する設定が異なります。また、各お部屋の所有者様によって、設備や使用、内装などが変更されている場合もございます。 ■敷金や礼金、各種キャンペーンについてはお部屋ごとに異なる場合がございます。また、予告なく変更・終了する場合がございますのでお申込みの際は募集条件を担当者までご確認ください。 ■ペットの飼育やSOHO利用の可否については、建物の管理規約にて可能になっている場合でも、お部屋の所有者様の意向により禁止の場合もございます。 ■ご契約時には仲介手数料として賃料の1ヶ月分+税相当額を仲介手数料として頂戴いたします。 不明点や詳細は担当者までご相談ください。

