ジュマペール原宿 3階
1/1
ジュマペール原宿 3階
#エレベーター
JR山手線 / 原宿駅 徒歩3分
基本情報
物件名
ジュマペール原宿
住所
東京都渋谷区神宮前1丁目16-9
部屋番号
3階
最寄り駅
JR山手線 / 原宿駅 徒歩3分 東京メトロ副都心線 / 明治神宮前〈原宿〉駅 徒歩4分
賃料
880,000円(税込)
共益費
-
管理費
-
敷金
-
礼金
2ヶ月
フリーレント
-
用途
店舗
保険
加入要
保証会社
加入可
保証金
10ヶ月分
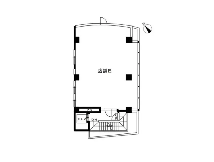
間取り
1R
専有面積
67.66㎡
坪数
20.46坪
築年数
1984年3月 (築42年)
方角
南東
賃借種別
定期借家
賃借期間
5年間
物件特徴
1フロア1テナント
特記事項
現状、居抜きにて募集中です。 転貸契約 中途解約2年不可 重飲⾷不可 保証⾦償却:解約時3ヶ⽉
入居日
2026年2⽉予定
構造
RC造(鉄筋コンクリート造)
所在階
3階
総階数
地上3階 / 地下1階
総戸数
-
エレベーター
1基
取引態様
媒介(仲介)
情報更新日
2026/01/24
設備
エレベーター
共有部
エレベーター
店舗特徴
居抜き
1フロア1テナント
土曜日利用可
土日・祝日利用可
アクセスマップ
ジュマペール原宿とは
竹下通り沿いの店舗・事務所物件は、原宿のエネルギーと表参道の洗練を日常のビジネス空間へ落とし込む魅力を持ちます。1984年竣工の鉄筋コンクリート造・新耐震基準の地下1階付き3階建。原宿駅へ徒歩3分、明治神宮前駅へ4分、表参道駅へ12分、北参道駅へもアクセス良好。路面の視認性と高い人通りを活かせる立地で、店舗としてのブランディングにも有利です。 募集区画は3階の約21.81坪(72.12㎡)で、賃料は500,000円、別途共益費。飲食店舗も相談可能、看板設置もご相談いただけます。エレベーター完備で来客導線もスムーズ。店舗利用の契約期間は3年を目安として、柔軟な活用も検討可能。クリエイティブな発信が映えるファサードと、周囲のファッション・カルチャーシーンと相乗効果を生む立地。
この物件に近いおすすめ物件

プレジール原宿
東京メトロ副都心線/北参道駅 徒歩6分
648,725円(管理費:0円)
1R/78㎡

豊匯ビル【ほうかいビル】
東京メトロ半蔵門線/表参道駅 徒歩6分
896,148円(管理費:0円)
1R/74.8㎡

原宿プラザビル【HARAJUKU PLAZA BUILDING】
東京メトロ副都心線/北参道駅 徒歩5分
650,000円(管理費:50,000円)
1LDK/74.37㎡

Concordia Omotesando【コンコルディア 表参道】
東京メトロ半蔵門線/表参道駅 徒歩5分
893,640円(管理費:0円)
1R/67.17㎡

NOZUビル【野津ビル】
東京メトロ副都心線/明治神宮前〈原宿〉駅 徒歩7分
715,000円(管理費:110,000円)
1R/69.09㎡

AIHARAⅡ【アイハラⅡ】
東京メトロ副都心線/明治神宮前〈原宿〉駅 徒歩4分
880,000円(管理費:0円)
2R/74.77㎡

Barbizon98【バルビゾン98】
東京メトロ副都心線/渋谷駅 徒歩5分
682,000円(管理費:0円)
1R/57.66㎡

Stones Court表参道【ストーンズコート表参道】
東京メトロ銀座線/表参道駅 徒歩6分
792,000円(管理費:0円)
1R/57.25㎡

アピス表参道スクエア
東京メトロ銀座線/表参道駅 徒歩4分
1,007,100円(管理費:0円)
1R/75.66㎡

dot.harajuku
東京メトロ副都心線/明治神宮前〈原宿〉駅 徒歩4分
920,700円(管理費:0円)
1R/55.34㎡
取り扱い不動産会社
株式会社東京オルガン不動産
所在地
所在地:
東京都渋谷区神宮前4-31-11 コスモ原宿ビル 702電話番号
電話番号:
03-5843-1513取引態様 / 宅地建物取引業免許
取引態様:
仲介 /宅地建物取引業免許:
東京都知事(1)第107236号備考
賃貸の場合 ■分譲賃貸マンションの場合、貸主様や代理不動産業者によって、家賃や管理費、敷金や礼金など賃貸借契約に関する設定が異なります。また、各お部屋の所有者様によって、設備や使用、内装などが変更されている場合もございます。 ■敷金や礼金、各種キャンペーンについてはお部屋ごとに異なる場合がございます。また、予告なく変更・終了する場合がございますのでお申込みの際は募集条件を担当者までご確認ください。 ■ペットの飼育やSOHO利用の可否については、建物の管理規約にて可能になっている場合でも、お部屋の所有者様の意向により禁止の場合もございます。 ■ご契約時には仲介手数料として賃料の1ヶ月分+税相当額を仲介手数料として頂戴いたします。 不明点や詳細は担当者までご相談ください。 購入の場合 ■販売価格等は予告なく変更されている場合がございます。不明点や詳細は担当者までご相談ください。 ■ご契約時には仲介手数料として販売価格の3%+6万円+税相当額を仲介手数料として頂戴いたします。 不明点や詳細は担当者までご相談ください。

