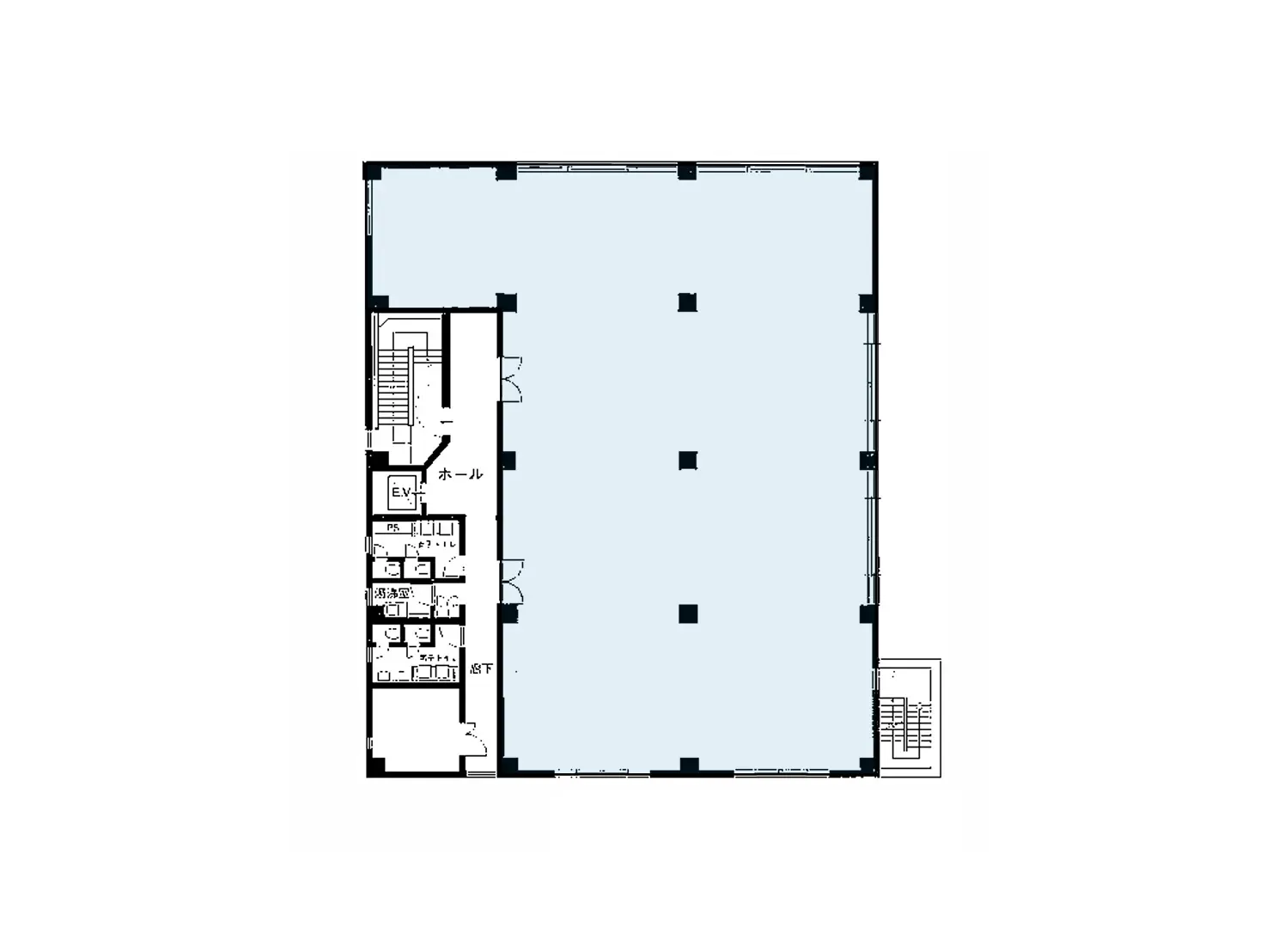
更生保護会館 2階
1/1
更生保護会館 2階
#24時間セキュリティー
#エレベーター
JR山手線 / 代々木駅 徒歩6分
基本情報
物件名
更生保護会館
住所
東京都渋谷区千駄ヶ谷5丁目10-9
部屋番号
2階
最寄り駅
JR山手線 / 代々木駅 徒歩6分 都営大江戸線 / 代々木駅 徒歩6分 東京メトロ副都心線 / 北参道駅 徒歩7分
賃料
1,829,212円(税込)
共益費
457,303円(税込)
管理費
-
敷金
-
礼金
-
フリーレント
-
用途
オフィス
保険
加入要
保証会社
加入可
保証金
12ヶ月分
間取り
1R
専有面積
392.67㎡
坪数
118.78坪
築年数
1987年3月 (築39年)
方角
-
賃借種別
普通借家
賃借期間
2年間
物件特徴
1フロア1テナント
特記事項
更新料:新賃料1ヶ月分 エントランス:平日8:00~17:15
入居日
即入居可
構造
RC造(鉄筋コンクリート造)
所在階
2階
総階数
地上4階
総戸数
-
エレベーター
1基
取引態様
媒介(仲介)
情報更新日
2025/09/23
設備
24時間セキュリティー
エレベーター
セキュリティー
防犯カメラ
24時間セキュリティー
共有部
エレベーター
バス・トイレ
トイレ2ヶ所
トイレ
洗面台
室内設備
エアコン
インターネット対応
その他の特徴
事務所利用相談
IT重説 対応物件
定期借家を含まない
10分以内にコンビニがある
10分以内にスーパーがある
10分以内に公園がある
10分以内に保育園・幼稚園がある
10分以内に小学校がある
即入居可
事務所特徴
1フロア1テナント
24時間利用可
個別空調
男女トイレ別
温水洗浄便座
閑静な場所
角地
設備
4面採光
角部屋
キッチン
ミニキッチン
アクセスマップ
更生保護会館とは
東京都渋谷区千駄ヶ谷に位置するこのビルは、1987年に竣工した信頼のある賃貸オフィスビルです。地上4階建ての鉄筋コンクリート構造で、新耐震基準にも適合しているため、安全性が高く安心して利用できます。最寄り駅からは徒歩5分の距離にあり、複数の交通手段が利用可能で、通勤や来客時のアクセスも非常に良好です。 ビル内部は、広々とした118.78坪(約392.66㎡)のスペースを持ち、エレベーター完備で各フロアへの移動もスムーズです。また、24時間使用可能なフレキシブルな環境を提供しているため、さまざまなビジネススタイルに対応できます。個別空調が設置されており、快適な室温を保つことで従業員の集中力を高めることができる工夫もされています。 さらに、光ファイバーインターネットが導入されており、高速で安定した通信環境を実現。オンライン会議やクラウドサービスの利用にも最適です。セキュリティに関しても、機械警備が導入されているため、安心して業務に専念できる環境が整っています。 周辺には多くの飲食店やカフェ、コンビニエンスストアが点在し、日常の業務に必要な施設が充実しています。また、広々とした歩道や公園もあり、自然を感じながらリフレッシュできる環境が魅力です。このように、ビジネスの効率性と快適性を両立させたオフィス環境がここにあります。
この物件に近いおすすめ物件

代々木センタービル
都営大江戸線/代々木駅 徒歩3分
1,421,112円(管理費:0円)
1R/152.53㎡

代々木フォレストビル
JR山手線/代々木駅 徒歩3分
1,670,328円(管理費:0円)
1R/278.3㎡

セントヒルズ代々木
都営大江戸線/代々木駅 徒歩2分
1,980,000円(管理費:0円)
1R/289.76㎡

イワオアネックス新館
JR山手線/代々木駅 徒歩5分
1,874,400円(管理費:0円)
1R/352.06㎡
取り扱い不動産会社
株式会社東京オルガン不動産
所在地
所在地:
東京都渋谷区神宮前4-31-11 コスモ原宿ビル 702電話番号
電話番号:
03-5843-1513取引態様 / 宅地建物取引業免許
取引態様:
仲介 /宅地建物取引業免許:
東京都知事(1)第107236号備考
賃貸の場合 ■分譲賃貸マンションの場合、貸主様や代理不動産業者によって、家賃や管理費、敷金や礼金など賃貸借契約に関する設定が異なります。また、各お部屋の所有者様によって、設備や使用、内装などが変更されている場合もございます。 ■敷金や礼金、各種キャンペーンについてはお部屋ごとに異なる場合がございます。また、予告なく変更・終了する場合がございますのでお申込みの際は募集条件を担当者までご確認ください。 ■ペットの飼育やSOHO利用の可否については、建物の管理規約にて可能になっている場合でも、お部屋の所有者様の意向により禁止の場合もございます。 ■ご契約時には仲介手数料として賃料の1ヶ月分+税相当額を仲介手数料として頂戴いたします。 不明点や詳細は担当者までご相談ください。

