イワオアネックス新館 3階
1/1
イワオアネックス新館 3階
JR山手線 / 代々木駅 徒歩5分
基本情報
物件名
イワオアネックス新館
住所
東京都渋谷区千駄ヶ谷5丁目8-2
部屋番号
3階
最寄り駅
JR山手線 / 代々木駅 徒歩5分 東京メトロ副都心線 / 北参道駅 徒歩5分 都営大江戸線 / 代々木駅 徒歩5分
賃料
1,874,400円(税込)
共益費
117,150円(税込)
管理費
-
敷金
10ヶ月
礼金
-
フリーレント
-
用途
オフィス
保険
加入要
保証会社
加入可
保証金
-
間取り
1R
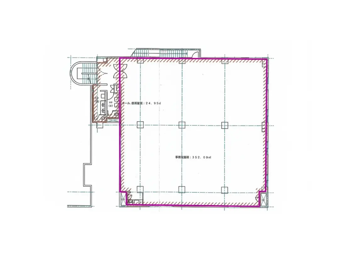
専有面積
352.06㎡
坪数
106.49坪
築年数
1984年1月 (築42年)
方角
-
賃借種別
普通借家
賃借期間
2~3年間
物件特徴
駐車場あり
特記事項
更新料:新賃料1ヶ月分 償却:2ヶ月分
入居日
即入居可
構造
RC造(鉄筋コンクリート造)
所在階
3階
総階数
地上4階 / 地下1階
総戸数
-
エレベーター
なし
取引態様
媒介(仲介)
情報更新日
2025/09/25
設備
設備
駐車場
ルーフバルコニー
2面採光
角部屋
バス・トイレ
トイレ2ヶ所
トイレ
洗面台
室内設備
エアコン
インターネット対応
光回線
その他の特徴
事務所利用相談
IT重説 対応物件
定期借家を含まない
10分以内にコンビニがある
10分以内にスーパーがある
10分以内に公園がある
即入居可
事務所特徴
個別空調
男女トイレ別
閑静な場所
アクセスマップ
イワオアネックス新館とは
東京都渋谷区千駄ヶ谷に位置する賃貸オフィス物件は、1984年に竣工された地上4階・地下1階建ての鉄筋コンクリート造。最寄りは東京メトロ副都心線「北参道駅」で、JR山手線や都営大江戸線「代々木駅」からも徒歩圏内というアクセスの良さが魅力です。基準階面積は約106坪(約352.2平方メートル)で、広々とした空間は多様なビジネスニーズに対応可能。各フロアは階段で移動する設計で、個別の空調管理が可能なため、快適な作業環境が整っています。さらに、光ファイバーの導入により、高速インターネット接続が実現されており、業務の効率化にも寄与します。セキュリティ面も安心で、24時間利用可能な環境が整っています。周辺にはコンビニや飲食店も豊富で、ビジネスシーンにおいて利便性が高いエリアです。自然豊かな新宿御苑や明治神宮も近く、リフレッシュできるスポットも充実しています。ビジネスの拠点として、理想的な立地と機能性を兼ね備えたオフィス物件です。
この物件に近いおすすめ物件

代々木センタービル
都営大江戸線/代々木駅 徒歩3分
1,421,112円(管理費:0円)
1R/152.53㎡

代々木フォレストビル
JR山手線/代々木駅 徒歩3分
1,670,328円(管理費:0円)
1R/278.3㎡

セントヒルズ代々木
都営大江戸線/代々木駅 徒歩2分
1,980,000円(管理費:0円)
1R/289.76㎡

更生保護会館
JR山手線/代々木駅 徒歩6分
1,829,212円(管理費:0円)
1R/392.67㎡
取り扱い不動産会社
株式会社東京オルガン不動産
所在地
所在地:
東京都渋谷区神宮前4-31-11 コスモ原宿ビル 702電話番号
電話番号:
03-5843-1513取引態様 / 宅地建物取引業免許
取引態様:
仲介 /宅地建物取引業免許:
東京都知事(1)第107236号備考
賃貸の場合 ■分譲賃貸マンションの場合、貸主様や代理不動産業者によって、家賃や管理費、敷金や礼金など賃貸借契約に関する設定が異なります。また、各お部屋の所有者様によって、設備や使用、内装などが変更されている場合もございます。 ■敷金や礼金、各種キャンペーンについてはお部屋ごとに異なる場合がございます。また、予告なく変更・終了する場合がございますのでお申込みの際は募集条件を担当者までご確認ください。 ■ペットの飼育やSOHO利用の可否については、建物の管理規約にて可能になっている場合でも、お部屋の所有者様の意向により禁止の場合もございます。 ■ご契約時には仲介手数料として賃料の1ヶ月分+税相当額を仲介手数料として頂戴いたします。 不明点や詳細は担当者までご相談ください。

