CASA表参道【カーサ表参道】 1棟
1/1
CASA表参道【カーサ表参道】 1棟
東京メトロ副都心線 / 明治神宮前〈原宿〉駅 徒歩5分
基本情報
物件名
CASA表参道【カーサ表参道】
住所
東京都渋谷区神宮前4丁目19-3
部屋番号
1棟
最寄り駅
東京メトロ副都心線 / 明治神宮前〈原宿〉駅 徒歩5分 東京メトロ銀座線 / 表参道駅 徒歩5分 東京メトロ千代田線 / 表参道駅 徒歩5分 東京メトロ半蔵門線 / 表参道駅 徒歩5分
賃料
5,060,000円(税込)
共益費
-
管理費
-
敷金
-
礼金
-
フリーレント
-
用途
住居 オフィス 店舗 SOHO
保険
加入要
保証会社
加入可
保証金
10ヵ月分
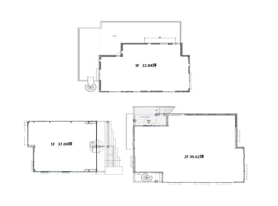
間取り
3R
専有面積
328.92㎡
坪数
99.49坪
築年数
1994年5月 (築32年)
方角
-
賃借種別
定期借家
賃借期間
5年間
物件特徴
路面店
特記事項
ベランダ有り 再契約相談:可 新賃料1ヶ月分 解約予告6か月前 保証会社:4cs 償却1ヶ月 業種:物販○/美容室○/サービス○/飲食×/軽飲食△
入居日
相談
構造
S造(軽量鉄骨造)
所在階
1階
総階数
地上3階
総戸数
-
エレベーター
なし
取引態様
媒介(仲介)
情報更新日
2026/03/11
設備
室内設備
インターネット対応
光回線
その他の特徴
二人入居可
事務所利用相談
IT重説 対応物件
10分以内にコンビニがある
10分以内にスーパーがある
10分以内に公園がある
10分以内に保育園・幼稚園がある
10分以内に小学校がある
10分以内に銀行窓口がある
事務所特徴
1フロア1テナント
土曜日利用可
土日・祝日利用可
個別空間
閑静な場所
SOHO特徴
登記可能
店舗特徴
土曜日利用可
土日・祝日利用可
小売り・販売
美容室
エステ・サロン
クリニック
塾・スクール
スタジオ・ジム
軽飲食
独立階段
路面店
閑静な場所
飲食店可
設備
4面採光
角部屋
アクセスマップ
CASA表参道【カーサ表参道】とは
落ち着いた雰囲気が漂う表参道の住宅街に位置する、シックでスタイリッシュな外観の店舗・事務所用物件。表参道ヒルズの裏手にありながら、喧騒を離れた静かな環境で、商業施設へのアクセスも抜群です。原宿も徒歩で気軽に行ける距離にあるため、流行の最先端を感じながら仕事をすることができます。 この物件は、1階から3階までの一棟貸しとして提供され、それぞれのフロアはゆとりのある広さが確保されており、物販や美容室などのサービス業にも相談可能。ただし、飲食店舗は原則として不可ですが、軽飲食についてはご相談いただけます。 豊富な専有面積を誇り、多様なビジネスニーズに応えるフレキシブルな空間設計が魅力です。千代田線表参道駅から徒歩4分、明治神宮前駅からは7分と、利便性の高い立地で、通勤もストレスフリー。 充実したコンシェルジュサービスと24時間体制のセキュリティで安心して業務に専念でき、ペットの飼育も可能なため、働き方に合わせたライフスタイルを実現できます。美しい街並みに溶け込むこの物件は、ワンランク上のビジネス環境をお探しの方に最適です。
この物件に近いおすすめ物件

フィロアオヤマビル
東京メトロ半蔵門線/表参道駅 徒歩4分
5,500,000円(管理費:0円)
3R/308.87㎡

渋原XROSS(シブハラクロス)
東京メトロ副都心線/明治神宮前〈原宿〉駅 徒歩4分
5,500,000円(管理費:0円)
2R/254.05㎡
取り扱い不動産会社
株式会社東京オルガン不動産
所在地
所在地:
東京都渋谷区神宮前4-31-11 コスモ原宿ビル 702電話番号
電話番号:
03-5843-1513取引態様 / 宅地建物取引業免許
取引態様:
仲介 /宅地建物取引業免許:
東京都知事(1)第107236号備考
賃貸の場合 ■分譲賃貸マンションの場合、貸主様や代理不動産業者によって、家賃や管理費、敷金や礼金など賃貸借契約に関する設定が異なります。また、各お部屋の所有者様によって、設備や使用、内装などが変更されている場合もございます。 ■敷金や礼金、各種キャンペーンについてはお部屋ごとに異なる場合がございます。また、予告なく変更・終了する場合がございますのでお申込みの際は募集条件を担当者までご確認ください。 ■ペットの飼育やSOHO利用の可否については、建物の管理規約にて可能になっている場合でも、お部屋の所有者様の意向により禁止の場合もございます。 ■ご契約時には仲介手数料として賃料の1ヶ月分+税相当額を仲介手数料として頂戴いたします。 不明点や詳細は担当者までご相談ください。

