表参道J-FLAT 1階
1/1
表参道J-FLAT 1階
東京メトロ銀座線 / 表参道駅 徒歩5分
基本情報
物件名
表参道J-FLAT
住所
東京都渋谷区神宮前4丁目14-18
部屋番号
1階
最寄り駅
東京メトロ銀座線 / 表参道駅 徒歩5分 東京メトロ千代田線 / 表参道駅 徒歩5分 東京メトロ半蔵門線 / 表参道駅 徒歩5分 東京メトロ副都心線 / 明治神宮前〈原宿〉駅 徒歩6分
賃料
1,443,750円(税込)
共益費
-
管理費
-
敷金
-
礼金
2ヶ月
フリーレント
-
用途
店舗
保険
加入要
保証会社
加入要
保証金
-
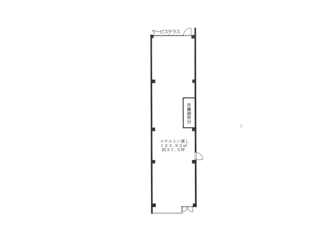
間取り
1R
専有面積
123.82㎡
坪数
37.45坪
築年数
2008年9月 (築18年)
方角
-
賃借種別
普通借家
賃借期間
2年間
物件特徴
デザイナーズ
特記事項
敷金:1,000万円
入居日
即入居可
構造
RC造(鉄筋コンクリート造)
所在階
1階
総階数
地上3階
総戸数
3戸
エレベーター
なし
取引態様
媒介(仲介)
情報更新日
2025/12/10
設備
室内設備
インターネット対応
その他の特徴
IT重説 対応物件
10分以内にコンビニがある
10分以内に公園がある
10分以内に保育園・幼稚園がある
10分以内に小学校がある
店舗特徴
飲食店不可
スケルトン
1フロア1テナント
土曜日利用可
土日・祝日利用可
小売り・販売
美容室
エステ・サロン
クリニック
塾・スクール
スタジオ・ジム
閑静な場所
アクセスマップ
表参道J-FLATとは
表参道駅から徒歩わずか4分、神宮前4丁目の中心に位置する魅力的な貸し店舗をご紹介いたします。この物件は、前面がガラス張りの洗練されたデザインで、視認性が非常に高く、多くの人々の目を引くこと間違いありません。 周辺にはおしゃれなショップやカフェが立ち並び、地域の活気とトレンドを感じられる環境が整っています。 新たなビジネスの舞台として、ぜひこの素晴らしいロケーションをご検討ください。詳細につきましては、ぜひお気軽にお問い合わせください。
この物件に近いおすすめ物件

J-6ビル【ジェイシックスビル】
東京メトロ副都心線/渋谷駅 徒歩6分
1,815,440円(管理費:0円)
1R/136.41㎡

ARISTO表参道Ⅱ【アリスト表参道2】旧)ルヴェ神宮前
東京メトロ副都心線/明治神宮前〈原宿〉駅 徒歩5分
2,554,200円(管理費:0円)
1R/85.32㎡

豊匯ビル【ほうかいビル】
東京メトロ半蔵門線/表参道駅 徒歩6分
896,148円(管理費:0円)
1R/74.8㎡

ARA神宮前プレイス【エーアールエー神宮前プレイス】
東京メトロ千代田線/表参道駅 徒歩6分
1,155,000円(管理費:0円)
1R/126.05㎡

RUBY ANGEL表参道
東京メトロ千代田線/表参道駅 徒歩4分
1,129,436円(管理費:0円)
1R/89.35㎡

冨貴ビル
東京メトロ副都心線/明治神宮前〈原宿〉駅 徒歩2分
1,452,000円(管理費:0円)
1R/156.2㎡

OJ表参道 (旧(仮称)表参道.OJ計画)
東京メトロ銀座線/表参道駅 徒歩5分
1,427,580円(管理費:0円)
1R/122.6㎡

ミヤヒロビル
東京メトロ銀座線/表参道駅 徒歩2分
1,252,636円(管理費:0円)
1R/153.66㎡

VORT外苑前Ⅲ【ボルト外苑前3】
東京メトロ銀座線/外苑前駅 徒歩5分
1,274,130円(管理費:0円)
1R/147.29㎡

(仮称)フィル・パーク神宮前5丁目
東京メトロ銀座線/表参道駅 徒歩4分
1,495,000円(管理費:0円)
1R/107.58㎡
取り扱い不動産会社
株式会社東京オルガン不動産
所在地
所在地:
東京都渋谷区神宮前4-31-11 コスモ原宿ビル 702電話番号
電話番号:
03-5843-1513取引態様 / 宅地建物取引業免許
取引態様:
仲介 /宅地建物取引業免許:
東京都知事(1)第107236号備考
賃貸の場合 ■敷金や礼金、各種キャンペーンについてはお部屋ごとに異なる場合がございます。また、予告なく変更・終了する場合がございますのでお申込みの際は募集条件を担当者までご確認ください。 ■ペットの飼育やSOHO利用の可否については、建物の管理規約にて可能になっている場合でも、お部屋の所有者様の意向により禁止の場合もございます。 ■ご契約時には仲介手数料として賃料の1ヶ月分+税相当額を仲介手数料として頂戴いたします。 不明点や詳細は担当者までご相談ください。

